店舗向き居抜き物件!エアコン、飲食設備付き(設備売買無し)駐車場10台無料、10 月末までご契約の場合フリーレント1か月!コンテナ2個付いてます!
賃貸店舗吉田店舗
賃料27.5万円
物件情報
| 家賃 | 27.5万円 | 共益費 | ナシ |
|---|---|---|---|
| 床面積 | 89.1m² / 26.95坪 | ||
| 敷金/礼金 | 25万円/ナシ | 保証金 | ナシ |
| 仲介手数料 | 27.5万円 | ||
| 料金備考 | 定期借家契約5年(再契約時手数料55,000円) 10月内のご契約は1か月フリーレント | ||
| 部屋番号 | - | 所在階/階数 | 1階 (1階建) |
| 物件種目 | 賃貸店舗 | 取引態様 | 仲介 |
| 契約期間 | 定期借家契約 (5年) | 更新料 | 5.5万円 |
| 保証会社 | 加入要 株式会社エポスカード(初回賃料50%、月々2,000円のお支払い) | ||
| 入居 | 即日 | ||
| 駐車場 | 10台無料 ※敷地内10台ほど駐車スペース有 | 所在地 | 宮古島市平良字東仲宗根 地図 |
| 交通 | 【バス停】北小前バス停: 徒歩約5分 | 築年月 | 1970年10月(築55年) |
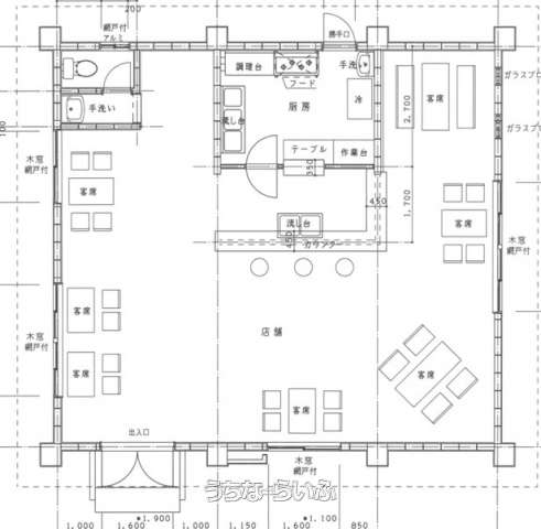
| 間取り備考 | 店舗、カウンター、厨房、土地(184坪)建物(27坪) | ||
| 更新日 | 2025/12/01 | 公開期限 | 2025/12/14 |
この物件の設備・条件
| 状態 | 居抜き |
|---|---|
| 設備備考 | 飲食設備付き(椅子、テーブル)コンテナ2個、エアコン設備付き |
物件備考
| 備考 | 土地(184坪)建物(27坪) |
|---|
【うちなーらいふ】は、より正確な情報の提供を心がけておりますが、物件情報に誤りがある場合は、ご連絡をお願い致します。
ご報告いただいた内容につきましては、掲載提供元である不動産会社に直接送信させていただきます。情報が不足している場合や、事実確認ができない場合などは対応できない場合がございます。
間違いを報告する



















