那覇市樋川にある通り沿い1階の事業用物件☆駐車場も2台駐車可 ※スケルトン、現状優先
物件情報
| 家賃 | 19.8万円 | 共益費 | 2,200円 |
|---|---|---|---|
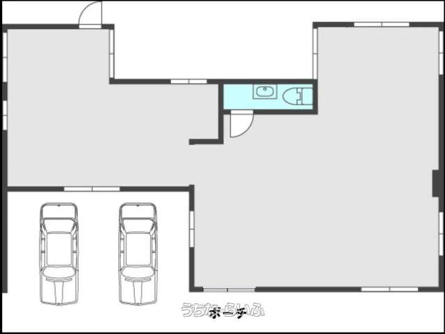
| 床面積 | 64.56m² / 19.52坪 | ||
| 敷金/礼金 | 54万円/ナシ | 保証金 | - |
| 仲介手数料 | 1ヶ月 | ||
| 料金備考 | ※除菌消臭料¥11,000 ※SAT119¥6,380 ※環境維持費¥2,200 ※浄水器リース費¥1,540 | ||
| 部屋番号 | - | 所在階/階数 | 1階 (4階建) |
| 物件種目 | 賃貸店舗・事務所 | 取引態様 | 仲介 |
| 契約期間 | 定期借家契約 (2年) | 更新料 | 1.1万円 |
| 保証会社 | 加入要 全保連株式会社(家賃保証料¥203,940、※金額変動の可能性あり) | ||
| 入居 | 相談 | ||
| 駐車場 | 2台無料 | 所在地 | 那覇市樋川1丁目 地図 |
| 交通 | 【バス停】与儀小学校前: 徒歩約3分 | 築年月 | 1994年08月(築31年) |
| 間取り備考 | - | ||
| 更新日 | 2025/10/31 | 公開期限 | 2025/11/13 |
この物件の設備・条件
| 状態 | スケルトン貸し |
|---|---|
| 内装・設備 | トイレ |
物件備考
| 備考 | - |
|---|
【うちなーらいふ】は、より正確な情報の提供を心がけておりますが、物件情報に誤りがある場合は、ご連絡をお願い致します。
ご報告いただいた内容につきましては、掲載提供元である不動産会社に直接送信させていただきます。情報が不足している場合や、事実確認ができない場合などは対応できない場合がございます。
間違いを報告する(有)サウスエステート沖縄
| 住所 | 沖縄県那覇市与儀 373-7 地図 |
|---|---|
| 営業時間 | 月〜土 09:00〜18:00 |
| 定休日 | 日曜日 祝祭日 第1・3・5土曜日 第2・4水曜日 ゴールデンウィーク 旧盆 年末年始 |
| 免許 | 沖縄県知事免許(5)第3553号 |








