1階路面区画です。
庭から海を見渡すことができ、訪れる方に特別感と開放感を感じていただけます。
業種については幅広くご相談可能ですので、これから事業を始めたい方、移転をご検討の方もぜひ一度お問い合わせください。
内覧のご希望や条件の確認など、お気軽にお申し付けください。
物件情報
| 家賃 | 33万円 | 共益費 | - |
|---|---|---|---|
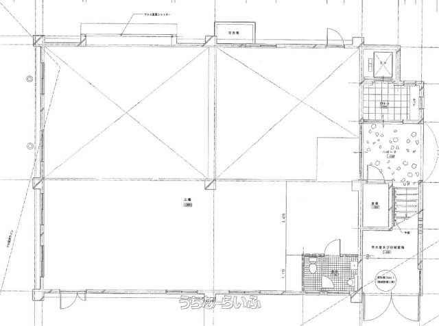
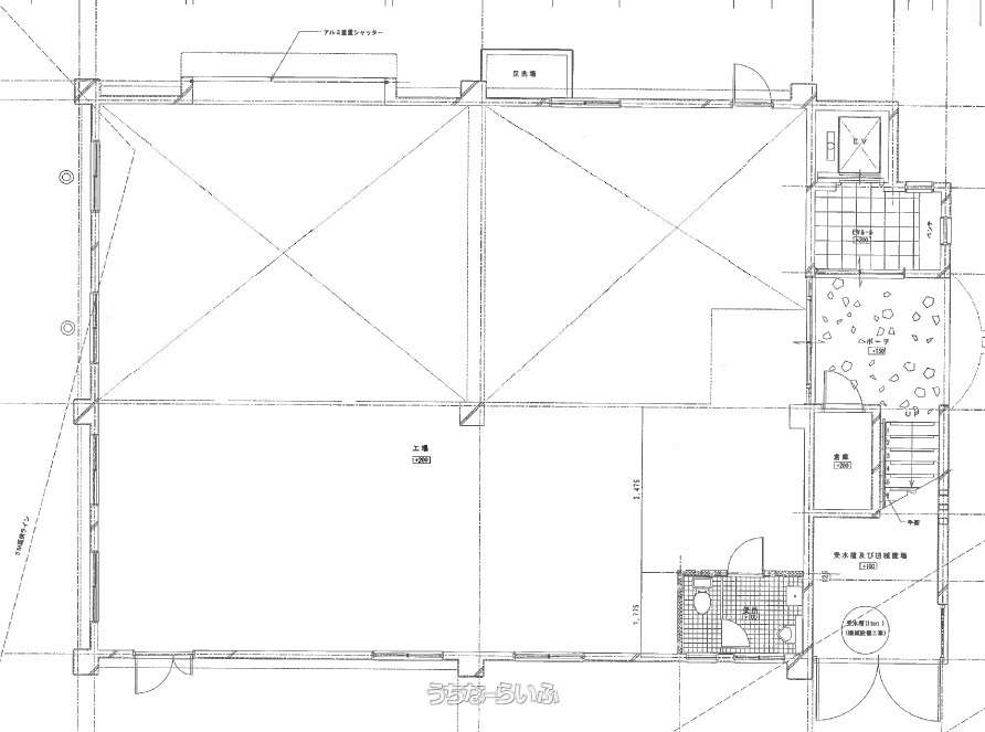
| 床面積 | 185m² / 55.96坪 | ||
| 敷金/礼金 | -/- | 保証金 | - |
| 仲介手数料 | - | ||
| 料金備考 | - | ||
| 部屋番号 | - | 所在階/階数 | 1階 (地上3階/地下1階建) |
| 物件種目 | 賃貸店舗・工場 | 取引態様 | 貸主 |
| 契約期間 | 定期借家契約 (2年) | 更新料 | 2.2万円 |
| 保証会社 | 加入要 保証会社:基本加入(相談可)火災保険:必須 | ||
| 入居 | 指定有 | ||
| 駐車場 | 2台無料 ※※台数は要相談 | 所在地 | 本部町渡久地 地図 |
| 交通 | - | 築年月 | - |
| 間取り備考 | - | ||
| 更新日 | 2026/02/20 | 公開期限 | 2026/03/05 |
この物件の設備・条件
| 状態 | スケルトン貸し |
|---|---|
| 外観・設備 | 看板取付スペースあり |
| 内装・設備 | トイレ |
| セキュリティ | 電動シャッター |
| 特徴・その他 | 飲食店可 |
| 立地 | 海が見える 、 海が近い(500m以内) 、 路面店 |
物件備考
| 備考 | 【初期費用概算】 家賃等 家賃:330,000円(税込) 【その他費用】 敷金:600,000円(家賃2ヶ月分)店舗のみ2ヶ月 それ以外は1ヶ月 礼金:0円 仲介手数料:330,000円(家賃1ヶ月+消費税) 保証会社保証委託料:330,000円(総家賃の100%) 火災保険料:18,420円(2年更新) 合計:1,278,420円 初期費用概算:330,000円+1,278,420円=1,608,420円 ・月途中で入居する場合は別途日割り家賃が発生致します。 ・見積もりは概算になります。 ※敷金は店舗のみ2ヶ月分、その他は1ヶ月分 ※室内・ベランダでは禁煙となっております。 |
|---|
【うちなーらいふ】は、より正確な情報の提供を心がけておりますが、物件情報に誤りがある場合は、ご連絡をお願い致します。
ご報告いただいた内容につきましては、掲載提供元である不動産会社に直接送信させていただきます。情報が不足している場合や、事実確認ができない場合などは対応できない場合がございます。
間違いを報告する

























