旭橋駅・那覇バスターミナルから徒歩5分圏内。近隣にはパレットくもじ・OPA・コンビニと好立地の新築オフィスビル!1フロア1区画で顔認証システム・EVフロアロックを採用し、セキュリティもバッチリです。
物件情報
| 家賃 | 77.6万円 | 共益費 | ナシ |
|---|---|---|---|
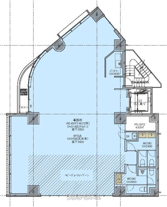
| 床面積 | 160.4m² / 48.52坪 | ||
| 敷金/礼金 | 12ヶ月/1ヶ月 | 保証金 | ナシ |
| 仲介手数料 | 1.1ヶ月 | ||
| 料金備考 | - | ||
| 部屋番号 | 5F号 | 所在階/階数 | 5階 (8階建) |
| 物件種目 | 賃貸事務所 | 取引態様 | 専任媒介 |
| 契約期間 | 2年更新 | 更新料 | - |
| 保証会社 | 加入要 | ||
| 入居 | 即日 | ||
| 駐車場 | 1台35,000円 ※バイク駐輪場(台数制限あり):1台5000円/月 | 所在地 | 那覇市泉崎1丁目 地図 |
| 交通 | 【モノレール】旭橋駅: 徒歩約5分 【バス停】バスターミナル前: 徒歩約2分 | 築年月 | 2025年(築1年) |
| 間取り備考 | - | ||
| 更新日 | 2026/03/16 | 公開期限 | 2026/03/29 |
この物件の設備・条件
| 外観・設備 | エレベーター |
|---|---|
| 内装・設備 | 男女別トイレ |
| セキュリティ | 24時間セキュリティ |
物件備考
| 備考 | 屋上には開放的な休憩エリアを設けており、これまた社員さんも喜ばれるポイントです!条件相談応じます。 |
|---|
【掲載物件について】
・「うちなーらいふ」は、より正確な情報の提供を心がけておりますが、物件情報に誤りがある場合は、ご連絡をお願い致します。
・ご報告いただいた内容につきましては、掲載提供元である不動産会社に直接送信させていただきます。情報が不足している場合や、事実確認ができない場合などは対応できない場合がございます。
・本フォームは物件情報の誤りに関する報告専用です。賃貸・売買に関するお問い合わせには対応しておりませんので、あらかじめご了承ください。
こちらをクリックして物件の間違いを報告する。




















