【室内改装可(借主負担)】スーパーまで徒歩3分。繁華街松山の隣の物件の募集です。
物件情報
| 家賃 | 19.8万円 | 共益費 | ナシ |
|---|---|---|---|
| 床面積 | 99.17m² / 30坪 | ||
| 敷金/礼金 | 1ヶ月/ナシ | 保証金 | ナシ |
| 仲介手数料 | 1.1ヶ月 | ||
| 料金備考 | ※家賃保証及び火災保険必須加入 | ||
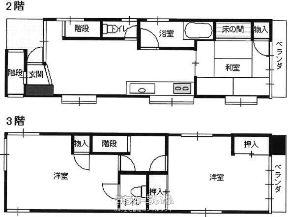
| 部屋番号 | 2階号 | 所在階/階数 | 2階 (3階建) |
| 物件種目 | 賃貸店舗・事務所 | 取引態様 | 専属専任媒介 |
| 契約期間 | 定期借家契約 (5年) | 更新料 | 5.5万円 |
| 保証会社 | 加入要 | ||
| 入居 | 相談 | ||
| 駐車場 | ナシ | 所在地 | 那覇市前島3丁目 地図 |
| 交通 | 【バス停】泊港入口: 徒歩約2分 | 築年月 | 1979年10月(築46年) |
| 間取り備考 | ※現状引渡し ※室内改装工事可(借主負担) | ||
| 更新日 | 2026/04/27 | 公開期限 | 2026/05/10 |
この物件の設備・条件
| 特徴・その他 | 民泊可 、 飲食店可 |
|---|---|
| 立地 | 海が近い(500m以内) |
物件備考
| 備考 | 【室内改装可(借主負担)】スーパーまで徒歩3分。繁華街松山の隣の物件の募集です。 |
|---|
【掲載物件について】
・「うちなーらいふ」は、より正確な情報の提供を心がけておりますが、物件情報に誤りがある場合は、ご連絡をお願い致します。
・ご報告いただいた内容につきましては、掲載提供元である不動産会社に直接送信させていただきます。情報が不足している場合や、事実確認ができない場合などは対応できない場合がございます。
・本フォームは物件情報の誤りに関する報告専用です。賃貸・売買に関するお問い合わせには対応しておりませんので、あらかじめご了承ください。
こちらをクリックして物件の間違いを報告する。























