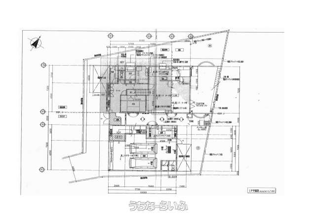
☆生活至便な好立地☆マックスバリュ宮古南店まで車で3分・徒歩でも6分☆宮古空港まで車で10分の場所に建つ店舗・事務所併用住宅☆店舗事務所部分と住居部分は室内で繋がっている構造です☆職住が敷地内で完結☆住居には吹抜け部分がありとても開放的な造りです☆店舗事務所2階はキッチンやシャワールーム完備・1階部分はガレージとしても利用可能☆二世帯住宅としても利用できます☆敷地内は縦列にて2台駐車可能☆太陽光パネル設置済みなので停電時も安心☆バルコニーからの眺望良好です☆お気軽にお問い合わせください☆内覧は事前予約制です
売買一戸建て宮古島市平良字下里 3LDK
価格 9,000万円
物件情報
| 価格 | 9,000万円 | 階数 | 2階建て |
|---|---|---|---|
| 間取り | 3LDK ( ※※住居部分:3LDK + 店舗事務所) | ||
| 建物面積 | 279m² / 84.39坪 | 土地面積 | 512.55m² / 155.04坪 |
| 私道負担 | 無し | 築年月 | 1995年09月(築30年) |
| 駐車場 | 1台 並列 •2台目 並列 ※ビルトインガレージ | 地目 | 宅地 |
| 引き渡し | 相談 | 接道方向 / 道路幅員 | 北、 北東、 東、 南東、 南、 南西4.6m、 西、 北西 |
| 土地権利 | 所有 | 都市計画 | 非線引 |
| 用途地域 | 無指定 | 建物構造 | RCB(鉄筋コンクリートブロック造) |
| 取引態様 | 一般媒介 | 所在地 | 宮古島市平良字下里 地図 |
| 建ぺい率 / 容積率 | 60% / 200% | 交通 | - |
| 価格備考 | - | ||
| 更新日 | 2026/03/17 | 公開期限 | 2026/03/30 |
この物件の設備・条件
| キッチン | 給湯 、 浄水器 、 ガスコンロ 、 コンロ三口以上 、 対面式キッチン(カウンターキッチン) 、 システムキッチン 、 食器洗乾燥機 |
|---|---|
| バス・トイレ | バス/トイレ別 、 ユニットバス 、 浴槽 、 独立洗面所 、 追焚機能 |
| 家具・家電 | 冷房 |
| セキュリティ | インターフォン 、 電動シャッター |
| 室内設備 | 室内洗濯機置き場 |
| 収納 | ウォークインクローゼット 、 シューズボックス |
| 立地・土地特徴 | 敷地延長・変形地 |
| 建物設備 | 上水道 、 太陽光発電システム 、 プロパンガス 、 庭付き 、 吹抜 |
| その他条件 | 眺望良し |
物件備考
| 備考 | ※旗竿地につき敷地入口部分がやや狭いです※店舗事務所部分は2003年(平成15年)4月築 ■現況: 空き家 |
|---|
【掲載物件について】
・「うちなーらいふ」は、より正確な情報の提供を心がけておりますが、物件情報に誤りがある場合は、ご連絡をお願い致します。
・ご報告いただいた内容につきましては、掲載提供元である不動産会社に直接送信させていただきます。情報が不足している場合や、事実確認ができない場合などは対応できない場合がございます。
・本フォームは物件情報の誤りに関する報告専用です。賃貸・売買に関するお問い合わせには対応しておりませんので、あらかじめご了承ください。
こちらをクリックして物件の間違いを報告する。



































