全③棟 ①号棟『伊良波小学校🎒伊良波中学校🏫区域』生活利便施設が充実✨徒歩5分にコンビニあり🏪🎶【24時まで内覧可🌃年間販売棟数150棟以上🏡年中無休🌈送迎可🚗】
パノラマ画像
物件情報
| 価格 | 4,880万円 | 階数 | 2階建て |
|---|---|---|---|
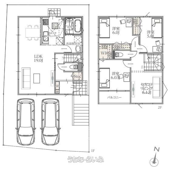
| 間取り | 3LDK ( 洋6 洋6 洋5 LDK19 ※セカンドリビング・ウォークインクローゼット・バルコニー) | ||
| 建物面積 | 99.05m² / 29.96坪 | 土地面積 | 120.68m² / 36.5坪 |
| 私道負担 | 無し | 築年月 | 2025年12月(新築) |
| 駐車場 | 2台 並列 ※並列駐車 | 地目 | 宅地 |
| 引き渡し | 相談 (-) | 接道方向 / 道路幅員 | 南4m |
| 土地権利 | 所有 | 都市計画 | 市街化区域 |
| 用途地域 | 第一種低層・第一種低層 | 建物構造 | 木造 |
| 取引態様 | 仲介 | 所在地 | 豊見城市名嘉地 地図 |
| 建ぺい率 / 容積率 | 50% / 100% | 交通 | 【モノレール】赤嶺駅: 徒歩約27分 【バス停】名嘉地: 徒歩約3分 |
| 価格備考 | 担当者へご確認ください | ||
| 更新日 | 2026/05/10 | 公開期限 | 2026/05/23 |
この物件の設備・条件
| キッチン | 給湯 、 省エネ給湯器 、 浄水器 、 ガスコンロ 、 コンロ三口以上 、 対面式キッチン(カウンターキッチン) 、 システムキッチン 、 パントリー(食器・食品の収納庫) 、 食器洗乾燥機 |
|---|---|
| バス・トイレ | バス/トイレ別 、 ユニットバス 、 浴槽 、 シャンプードレッサー 、 追焚機能 、 浴室乾燥機 、 浴室1坪以上 、 浴室暖房 、 トイレ2ヶ所 、 温水洗浄便座 |
| セキュリティ | インターフォン 、 TVホン(TVモニタ付インターホン) |
| 室内設備 | 室内洗濯機置き場 |
| 収納 | ウォークインクローゼット 、 シューズボックス 、 床下収納 、 全居室収納 |
| 立地・土地特徴 | 整形地 、 平坦地 |
| 建物設備 | 上水道 、 下水道 、 24時間換気システム 、 宅配ボックス 、 プロパンガス 、 オール洋間 |
| 構造 | 耐震構造 |
| 評価・証明書 | 設計住宅性能評価書 、 建設住宅性能評価書(新築時) 、 フラット35・S適合証明書あり 、 完了検査済証 、 新築時・増改築時の設計図あり |
| 瑕疵保証あり | 瑕疵保証(不動産会社独自)付 |
| 駐車場 | 駐輪場 |
| その他条件 | 日当たり良し |
| 設備備考 | - |
物件備考
| 備考 | ほとんどの方が人生で一度きりの大きなお買い物。 そんな責任のあるお買い物だからこそ、お客様を「幸せ」にも「不幸せ」にもできてしまう。。。 どうせ買うなら「幸せ」になってほしい。 そこで、私たちは、お客様の人生を預かる気持ちで、お客様にあった100%の物件をご紹介いたします! 営業マンなんてみんな一緒?いえ、弊社にいらっしゃれば、それが覆ります。 ぜひ、マイホームをお探しの方は、ご連絡お待ちしております。 ■現況: 建築中 ■建築確認番号: 第BVJ-YOK25-10-0160号 |
|---|
【掲載物件について】
・「うちなーらいふ」は、より正確な情報の提供を心がけておりますが、物件情報に誤りがある場合は、ご連絡をお願い致します。
・ご報告いただいた内容につきましては、掲載提供元である不動産会社に直接送信させていただきます。情報が不足している場合や、事実確認ができない場合などは対応できない場合がございます。
・本フォームは物件情報の誤りに関する報告専用です。賃貸・売買に関するお問い合わせには対応しておりませんので、あらかじめご了承ください。
こちらをクリックして物件の間違いを報告する。LIXIL不動産ショップ Nice不動産 本店
| 住所 | 沖縄県浦添市前田 641-1 地図 |
|---|---|
| 営業時間 | 09:00〜19:00 ※事前予約で物件案内は24時まで可能です |
| 定休日 | 年中無休 |
| 免許 | 沖縄県知事(1)第5410号 |






































