【キャンペーン!】
様々な特典をご用意しております!詳細はスタッフまでお気軽に!まずは住宅ローンの事前審査からでも大歓迎です!住宅ローンアドバイザーによるの資金計画書を作成いたします。お家探しは「じょーとーハウジング」で!お気軽にお問い合わせください!
パノラマ画像
物件情報
| 価格 | 3,280万円 | 階数 | 2階建て |
|---|---|---|---|
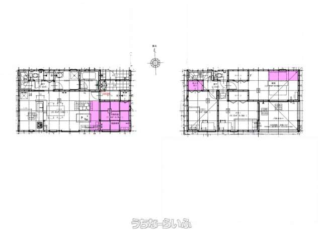
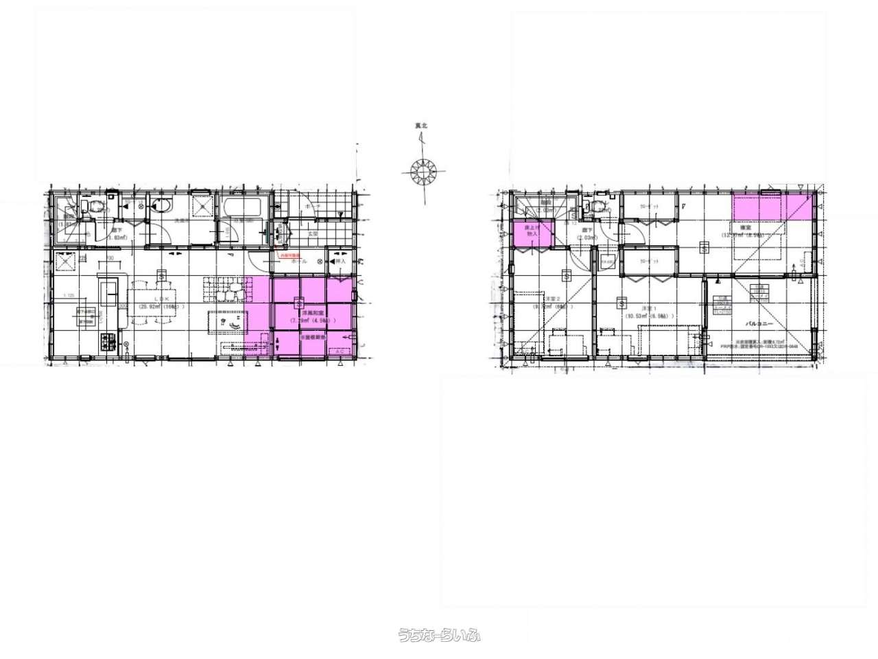
| 間取り | 4LDK ( 洋8.5 洋6.5 洋6 和4.5 LDK16 ※全居室収納、トイレ2カ所) | ||
| 建物面積 | 104.49m² / 31.6坪 | 土地面積 | 176.05m² / 53.25坪 |
| 私道負担 | 無し | 築年月 | 2026年06月(新築) |
| 駐車場 | 2台 縦列 ※車種によります | 地目 | 宅地 |
| 引き渡し | 相談 (相談) | 接道方向 / 道路幅員 | 北5.9m |
| 土地権利 | 所有 | 都市計画 | 非線引 |
| 用途地域 | 第一種低層・第一種低層 | 建物構造 | 木造 |
| 取引態様 | 一般媒介 | 所在地 | 名護市宇茂佐の森1丁目 地図 |
| 建ぺい率 / 容積率 | 50% / 100% | 交通 | 【モノレール】てだこ浦西駅: 徒歩約737分 【バス停】名護バスターミナルバス停: 徒歩約10分 |
| 価格備考 | ご契約時に手付金のお支払いと印紙代が必要となります。お客様に合わせた購入プラン・ローンシュミレーションも無料で作成しております。諸費用、オプション工事などに関しましてもお気軽にお問合せください。 | ||
| 更新日 | 2026/01/30 | 公開期限 | 2026/02/12 |
この物件の設備・条件
| キッチン | 給湯 、 省エネ給湯器 、 浄水器 、 ガスコンロ 、 コンロ三口以上 、 対面式キッチン(カウンターキッチン) 、 システムキッチン |
|---|---|
| バス・トイレ | バス/トイレ別 、 ユニットバス 、 浴槽 、 シャンプードレッサー 、 独立洗面所 、 追焚機能 、 浴室乾燥機 、 浴室暖房 、 トイレ2ヶ所 、 温水洗浄便座 |
| セキュリティ | インターフォン 、 TVホン(TVモニタ付インターホン) 、 ディンプルキー 、 防犯用ガラス |
| 室内設備 | 室内洗濯機置き場 |
| 収納 | シューズボックス 、 床下収納 、 全居室収納 |
| 立地・土地特徴 | 整形地 、 平坦地 、 隣の建物との間隔が広い 、 南向き |
| 建物設備 | 上水道 、 下水道 、 複層ガラス 、 24時間換気システム 、 プロパンガス 、 ルーフバルコニー |
| 構造 | 制震構造 、 耐震構造 、 ノンホルムアルデヒド |
| 評価・証明書 | 設計住宅性能評価書 、 建設住宅性能評価書(新築時) 、 フラット35・S適合証明書あり 、 完了検査済証 、 新築時・増改築時の設計図あり |
| 瑕疵保証あり | 瑕疵保険(国交省指定法人)による保証 |
| 駐車場 | 駐輪場 |
| その他条件 | 日当たり良し 、 静かな場所 |
| 設備備考 | 担当にご確認ください。 |
物件備考
| 備考 | 【法令】景観法【その他制限事項】宇茂佐第二地区地区計画 絶対高さ制限10m 建物面積に別途ルーフバルコニー約9.72平米有 土地面積に路地状部分約55.5平米含む カースペース2台(車種による) ●インフォメーション● 屋部小学校まで徒歩10分 屋部中学校までてょ17分 ■現況: 建築中 ■建築確認番号: 第R07SHC113975号 |
|---|
【うちなーらいふ】は、より正確な情報の提供を心がけておりますが、物件情報に誤りがある場合は、ご連絡をお願い致します。
ご報告いただいた内容につきましては、掲載提供元である不動産会社に直接送信させていただきます。情報が不足している場合や、事実確認ができない場合などは対応できない場合がございます。
間違いを報告する株式会社GSK じょーとーハウジング
| 住所 | 沖縄県那覇市仲井真 379-1 レジデンス新垣105号室 地図 |
|---|---|
| 営業時間 | 09:00〜18:00 年中無休、何時からでもご案内可能 |
| 定休日 | 年中無休 |
| 免許 | 沖縄県知事免許(1)第5345号 |







































![[②号棟]名護市宇茂佐の森 全20棟](https://cdn.e-uchina.net/media/pic/medium/6427/e1e874a64a8328679efe7410afefbd861d60d232.jpg)