飲食店、ホテルなどに。国道58号線沿い、恩納村リゾートホテル群の中心にあり集客性抜群です。スタイリッシュで広い店内はカフェ、ホテル、スーベニアショップなどにオススメ。
国道58号線沿いで近くに多数のリゾートホテルがあり、抜群の集客が期待できます。
売買一戸建て恩納村安富祖
価格 2億4,800万円
パノラマ画像
物件情報
| 価格 | 2億4,800万円 | 階数 | 2階建て |
|---|---|---|---|
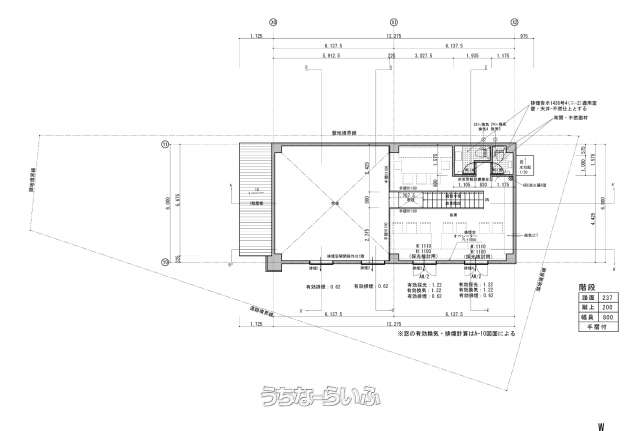
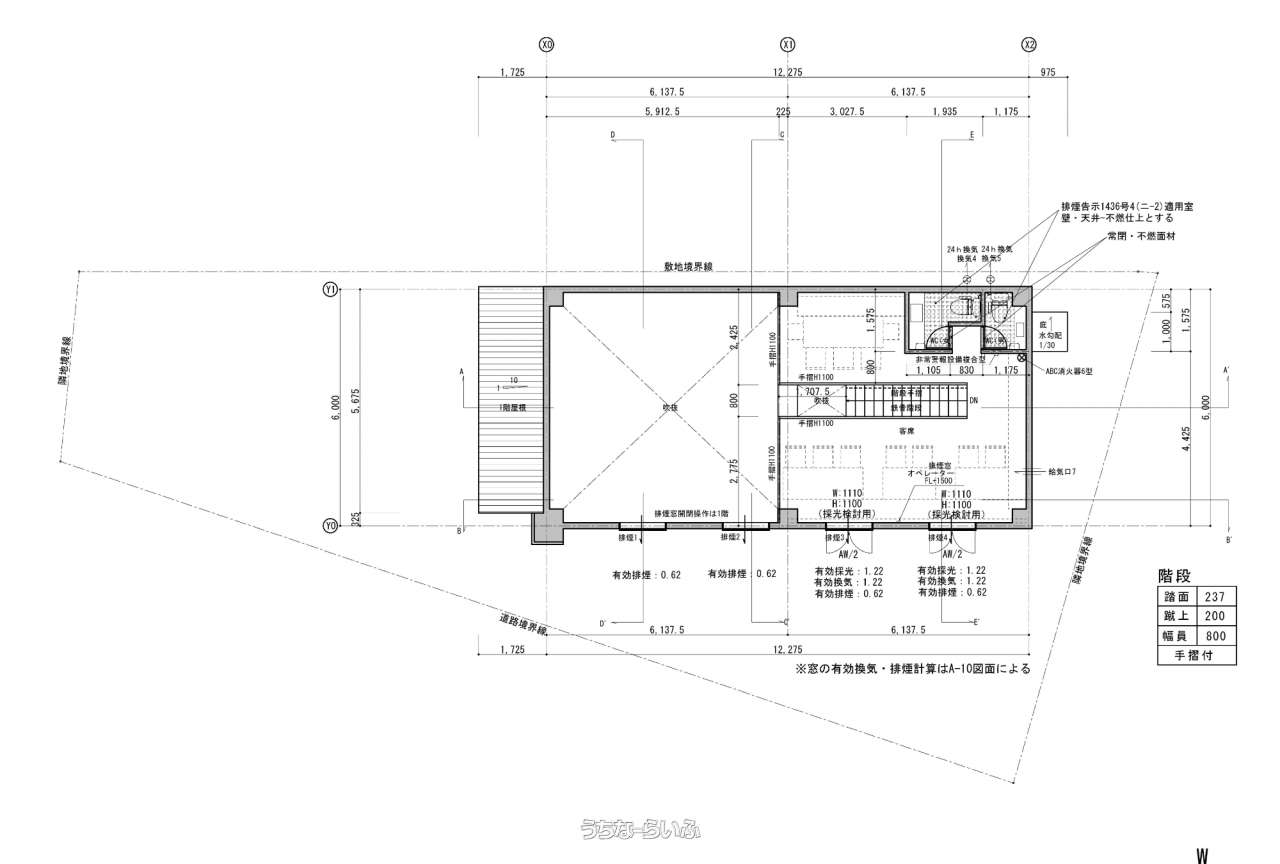
| 間取り | - ( ※半二階建ての内部は5メートルを超える吹き抜けの壁) | ||
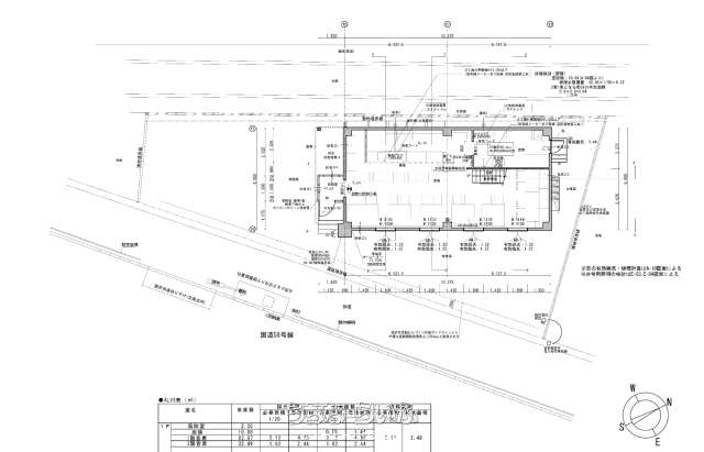
| 建物面積 | 110.38m² / 33.38坪 | 土地面積 | 238m² / 71.99坪 |
| 私道負担 | 無し | 築年月 | 2017年06月(築8年) |
| 駐車場 | 7台 並列 | 地目 | 宅地 |
| 引き渡し | - | 接道方向 / 道路幅員 | 南東14m |
| 土地権利 | 所有 | 都市計画 | 非線引 |
| 用途地域 | 無指定 | 建物構造 | RC(鉄筋コンクリート造) |
| 取引態様 | 一般媒介 | 所在地 | 恩納村安富祖 |
| 建ぺい率 / 容積率 | 70% / 400% | 交通 | 【モノレール】てだこ浦西駅: 徒歩約540分 【バス停】安冨祖: 徒歩約4分 |
| 価格備考 | ご契約時に手付金のお支払いと印紙代が必要となります。お客様に合わせた購入プラン・ローンシュミレーションも無料で作成しております。諸費用、オプション工事などに関しましてもお気軽にお問合せください。 | ||
| 更新日 | 2026/03/21 | 公開期限 | 2026/04/03 |
この物件の設備・条件
| キッチン | 給湯 、 浄水器 、 ガスコンロ 、 コンロ三口以上 、 対面式キッチン(カウンターキッチン) 、 システムキッチン 、 パントリー(食器・食品の収納庫) 、 食器洗乾燥機 |
|---|---|
| バス・トイレ | 独立洗面所 、 トイレ2ヶ所 、 温水洗浄便座 |
| 家具・家電 | 冷房 、 暖房 、 冷蔵庫 、 家具/家電付き |
| 立地・土地特徴 | 整形地 、 平坦地 、 隣の建物との間隔が広い |
| 建物設備 | 上水道 、 下水道 、 プロパンガス 、 オール洋間 |
| 構造 | デザイナーズ |
| 駐車場 | 駐輪場 |
| その他条件 | 日当たり良し |
物件備考
| 備考 | 国道58号線沿いで、国内外から観光客でにぎわう恩納村という好立地!幅広い業態に対応できるエリア&存在感のある建物となっております。まずはビジネスのイメージを持って内見していただきたい物件です! ●無煙ロースター15台(シンポ社製)●恒温恒湿コールドテーブル●動力タイプのハイパワースライサー●食洗器●グリドル●吊り下げ業務用エアコン5台(2025年7月メンテナンス済)●他、テーブル、椅子、冷蔵庫など すぐに営業可能な状態です! ステーキ、焼肉、しゃぶしゃぶ(IH)に向いた構造です 築8年目ですので建物、設備とも良好です! 席数:54席 テーブル:11卓 カウンター:7席 駐車場:.敷地内7台 著名な飲食建築デザイナー近森穣氏デザイン 国道58号線沿いにあり、シンボルである長い煙突と海外の倉庫のようなレンガ造りの建物は、昼も夜も存在感を放ちます 半二階建ての内部は5mを超える吹き抜けの壁に描かれた巨大な牛がお出迎え コザの壁画職人が3か月かけて描きました ステーキはオープンキッチンで豪快に 仕込みはお客様から見えない奥のキッチンで 2階には半個室スペースがあります スマートだけど肩肘張らないカジュアルさを、あえて残した内装です ■現況: 完成済 |
|---|
【掲載物件について】
・「うちなーらいふ」は、より正確な情報の提供を心がけておりますが、物件情報に誤りがある場合は、ご連絡をお願い致します。
・ご報告いただいた内容につきましては、掲載提供元である不動産会社に直接送信させていただきます。情報が不足している場合や、事実確認ができない場合などは対応できない場合がございます。
・本フォームは物件情報の誤りに関する報告専用です。賃貸・売買に関するお問い合わせには対応しておりませんので、あらかじめご了承ください。
こちらをクリックして物件の間違いを報告する。株式会社GSK じょーとーハウジング
| 住所 | 沖縄県那覇市仲井真 379-1 レジデンス新垣105号室 地図 |
|---|---|
| 営業時間 | 09:00〜18:00 年中無休、何時からでもご案内可能 |
| 定休日 | 年中無休 |
| 免許 | 沖縄県知事免許(1)第5345号 |
































