この物件についてお問い合わせ営 平日(水曜定休) 10:00〜19:00 土日祝 09:00〜18:00 定 水曜日・年末年始
🌞飯田の分譲住宅🌞本日モデル棟見学OK🏠✨高額仕様物件☆宜野湾市宇地泊2号棟✨駐車場は並列3台🚙売主と同じ飯田グループで安心★☆飯田グループHD提携ローンもございます!マイカーローンや、カードローンも住宅ローンへのおまとめプランも♪先ずは買う・買わないは別としてお気軽にご相談下さいね😊
パノラマ画像
物件情報
| 価格 | 6,080万円 | 階数 | 2階建て |
|---|---|---|---|
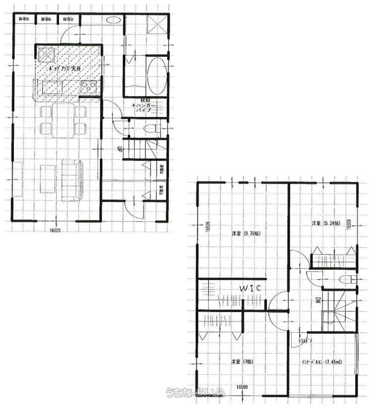
| 間取り | 3LDK ( 洋5.3 洋7 洋9.7 ※床下収納、インナーバルコニー) | ||
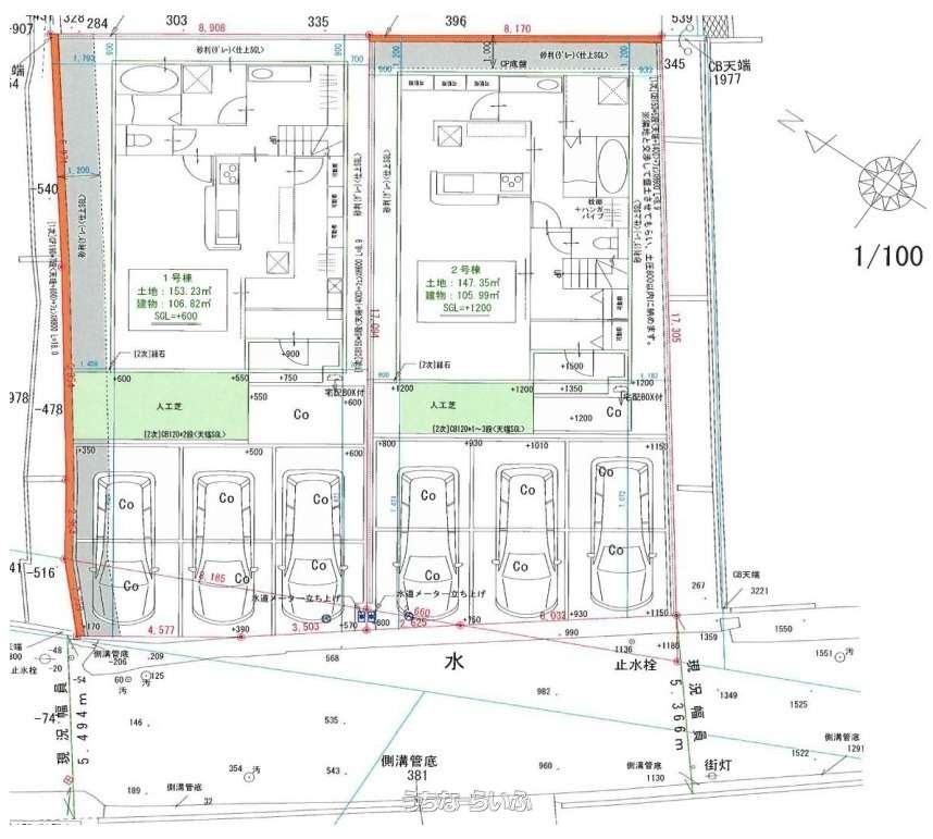
| 建物面積 | 105.99m² / 32.06坪 | 土地面積 | 147.35m² / 44.57坪 |
| 私道負担 | 無し | 築年月 | 2026年03月(新築) |
| 駐車場 | 3台 並列 ※駐車可能台数につきましては車種によりますので、お問い合わせ下さい! | 地目 | 宅地 |
| 引き渡し | 相談 (相談) | 接道方向 / 道路幅員 | 南西5.3m |
| 土地権利 | 所有 | 都市計画 | 市街化区域 |
| 用途地域 | 第二種中高層 | 建物構造 | 木造 |
| 取引態様 | 専任媒介 | 所在地 | 宜野湾市宇地泊2丁目 地図 |
| 建ぺい率 / 容積率 | 60% / 200% | 交通 | 【モノレール】浦添前田駅: 徒歩約54分 【バス停】兼久原(かねくばる): 徒歩約4分 |
| 価格備考 | ご契約の際には『手付金』『印紙』『仲介手数料』『登記費用』『司法書士代』が必要です。物件価格によって手付金の必要額が変わります!心配だな…と思うことは、なんでもご相談ください! | ||
| 更新日 | 2025/12/15 | 公開期限 | 2025/12/28 |
この物件の設備・条件
| キッチン | 給湯 、 省エネ給湯器 、 浄水器 、 ガスコンロ 、 コンロ三口以上 、 対面式キッチン(カウンターキッチン) 、 システムキッチン |
|---|---|
| バス・トイレ | バス/トイレ別 、 ユニットバス 、 浴槽 、 独立洗面所 、 追焚機能 、 浴室乾燥機 、 浴室1坪以上 、 浴室暖房 、 トイレ2ヶ所 、 温水洗浄便座 |
| セキュリティ | TVホン(TVモニタ付インターホン) |
| 室内設備 | 室内洗濯機置き場 |
| 収納 | 床下収納 、 全居室収納 |
| 立地・土地特徴 | 整形地 |
| 建物設備 | 上水道 、 下水道 、 複層ガラス 、 24時間換気システム 、 プロパンガス 、 オール洋間 |
| 構造 | 免震構造 、 耐震構造 、 ノンホルムアルデヒド |
| 評価・証明書 | 設計住宅性能評価書 、 建設住宅性能評価書(新築時) 、 フラット35・S適合証明書あり 、 完了検査済証 |
| 瑕疵保証あり | 瑕疵保証(不動産会社独自)付 |
| 設備備考 | 設備表記は図面と現況が相違する場合がございます。図面及びチラシ、WEB上の表記と現地及び仕様書等の表記が異なる場合は現況優先となります。ご契約後、お客様の別途費用により取付け可能な設備工事がございますので、詳しくは弊社営業スタッフまでお問合せください!物件は販売中につき、お申込み及びご契約予定、ご契約済みとなる場合がございますので、予めご承知おきください。物件詳細は弊社までご連絡ください。 |
物件備考
| 備考 | はじめまして、ホームトレードセンターです。 ホームトレードセンターは不動産事業を幅広く展開する「飯田グループホールディングス」の一員です! 「より多くの人々が幸せに暮らせる住環境を創造し豊かな社会づくりに貢献」するという経営理念で、 お客様に低コストで良質な住まいの情報をご提供致します。 住宅探しはもちろん、不動産のことなら私たちにご相談ください。 ここがスゴイ!!飯田グループホールディングス 「誰もが当たり前に家を買える、そんな社会にしたい」3世帯に1世帯が選ぶ新築戸建てをご提供しております。分譲住宅“日本一”! 「ホームトレードセンター」は飯田グループの販売窓口だから、選ばれ続けています! 飯田グループを知り尽くしている当社は飯田グループ物件仲介契約件数5年連続業界№1 飯田グループ物件の販売エキスパート集団です! 【飯田グループホールディングス:ホームトレードセンターで購入するメリット】 ☆6つプレミアムサービス ①圧倒的な物件情報量とグループならではのスピーディーで円滑なサポート 分譲住宅“日本一”の飯田グループだからお客様の「欲しい住宅」が必ず見つかります。 グループならではのスピード感のある情報提供とサポート体制で、お客様のご要望を実現します。 住宅検索サイトに掲載されている新築物件の大半が飯田グループの物件です。 ②飯田グループだから実現できるプレミアムな提携金利が利用可能 同じ借入金額でも利用する金融機関で総支払額は大きく異なります。 グループ内金融機関、提携金融機関との連携によりお客様のご要望に沿った住宅ローンをアテンド致します。 「住宅購入=新居が手に入る&団体信用生命保険に加入して安心して住める」 つまり賃貸リスクを払拭することが可能になります。 お客様が「お得に」「安心して」住宅を購入できる様にお手伝い致します。 私たちは住宅知識×住宅ローンの知識×保険の知識の3つのスペシャリストです。 ③建築工法・グループ分譲ビルダーの全てを熟知したスタッフの説明 飯田グループの物件は主要6社が分譲しております。当社社員はグループ一員のため、各ハウスブランドの特徴やメリットを熟知し、 お客様の疑問点に関して適切にご説明いたします。完成物件のプレゼンテーションはもちろん、未完成物件は設計図面や仕様書を用いる事で 正確な情報をお伝えします。 ④未公開物件・最新価格情報などグループならではの連携により、スピード感のある情報をご提案 全国にある飯田グループのネットワークから販売中物件はもちろん、未公開物件を含め、お客様にぴったりの物件をご紹介いたします。 さらに最新価格情報などお客様にとって、“お得”な情報を、スピーディーにご提供させて頂きます。当社だから実現できるご提案に是非ご期待ください。 ⑤「誰もが当たり前に家を買える社会」を実現するための、夢を叶えるお手伝い 住宅ローンが組めるかな?頭金が無いと大丈夫かな?おうち探しは初めてで不安・・・ お客様の不安を「安心」に変え、二人三脚で住宅取得までの全てをサポートさせて頂きます。 ⑥買う時も、買った後も手厚い安心のアフターサポート体制 新生活にワクワクする一方で、初めての住宅購入に不安は付きものです。 「建物に不具合がある」「リフォームを検討している」「どこに相談したら良いか分からない」 お住まいになられた後の“困った”も何でもご相談下さい。 当社スタッフはお引渡し後も、気軽に末永くご相談できるパートナーになることをお約束します。 ■現況: 建築中 ■建築確認番号: 第0000号 |
|---|
【うちなーらいふ】は、より正確な情報の提供を心がけておりますが、物件情報に誤りがある場合は、ご連絡をお願い致します。
ご報告いただいた内容につきましては、掲載提供元である不動産会社に直接送信させていただきます。情報が不足している場合や、事実確認ができない場合などは対応できない場合がございます。
間違いを報告する【飯田グループホールディングス】ホームトレードセンター株式会社 沖縄中央営業所
| 住所 | 沖縄県北谷町上勢頭 550-3 地図 |
|---|---|
| 営業時間 | 平日(水曜定休) 10:00〜19:00 土日祝 09:00〜18:00 |
| 定休日 | 水曜日・年末年始 |
| 免許 | 国土交通大臣免許(3)第8044号 |



































