※内見大歓迎!【名護市宮里5丁目中古戸建】シーズン中は前面の公園の桜が見れます!道路位置指定申請予定(応相談)・2F子供室は間仕切りで2部屋での使用も可能
物件情報
| 価格 | 3,998万円 | 階数 | 2階建て |
|---|---|---|---|
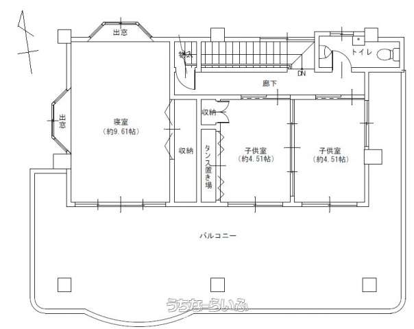
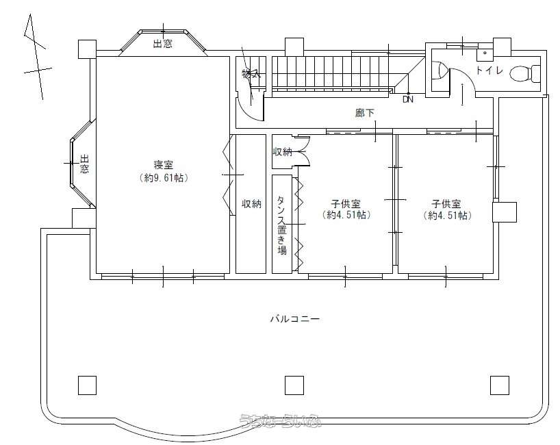
| 間取り | 4LDK ( 洋4.5 洋4.5 和7.2 LDK23.9 ※2F子供室は間仕切り取り外しで1部屋での使用も可能) | ||
| 建物面積 | 140.38m² / 42.46坪 | 土地面積 | 365.65m² / 110.61坪 |
| 私道負担 | 無し | 築年月 | 1999年03月(築26年) |
| 駐車場 | 2台 縦列 ※家庭菜園の取壊しで3台駐車可能(縦列) | 地目 | 宅地 |
| 引き渡し | 相談 | 接道方向 / 道路幅員 | 西12m |
| 土地権利 | 所有 | 都市計画 | 非線引 |
| 用途地域 | 第一種低層 | 建物構造 | RCB(鉄筋コンクリートブロック造) |
| 取引態様 | 一般媒介 | 所在地 | 名護市宮里5丁目 |
| 建ぺい率 / 容積率 | 40% / 80% | 交通 | 【バス停】宮里一丁目: 徒歩約3分 |
| 価格備考 | - | ||
| 更新日 | 2025/10/31 | 公開期限 | 2025/11/13 |
この物件の設備・条件
| キッチン | ガスコンロ 、 コンロ三口以上 、 L字型キッチン 、 システムキッチン |
|---|---|
| バス・トイレ | バス/トイレ別 、 浴槽 、 シャンプードレッサー 、 独立洗面所 、 浴室1坪以上 、 トイレ2ヶ所 |
| 家具・家電 | 冷房 、 暖房 、 洗濯機 、 冷蔵庫 、 テレビ |
| セキュリティ | インターフォン |
| 室内設備 | 室内洗濯機置き場 、 出窓 |
| 通信設備 | BSアンテナ |
| 収納 | シューズボックス |
| 立地・土地特徴 | 敷地延長・変形地 、 南向き |
| 建物設備 | 上水道 、 下水道 、 プロパンガス 、 南面バルコニー 、 庭付き |
| その他条件 | 日当たり良し 、 眺望良し |
| リフォーム・リノベーション | 外装・その他(屋根・外壁など) |
| 設備備考 | ■リフォーム状況2021年:外壁塗装・断熱工事・防水工事2023年:畳表替え・フローリングクリーニング2024年:網戸張替え・エアコン取り換え(寝室・和室) |
物件備考
| 備考 | ■リフォーム状況 2021年:外壁塗装・断熱工事・防水工事 2023年:畳表替え・フローリングクリーニング 2024年:網戸張替え・エアコン取り換え(寝室・和室) ■周辺環境 セブン-イレブン名護宮里5丁目店:徒歩2分 名護市中央図書館:徒歩5分 JAファーマーズマーケットやんばる:徒歩8分 タウンプラザかねひで大宮市場店:徒歩9分 名護市役所:車で5分 エナジックスタジアム名護・21世紀の森ビーチ:車で6分 ■建物目の前が公園となっており、シーズン中は桜が咲きます。 ■大宮小学校すぐ近くで登下校も安心です。 ■建物前の通路は道路位置指定を申請予定です(応相談)。 ■家庭菜園を取り壊せば駐車3台可能です(縦列)。 ■現況: 所有者居住中 |
|---|
【うちなーらいふ】は、より正確な情報の提供を心がけておりますが、物件情報に誤りがある場合は、ご連絡をお願い致します。
ご報告いただいた内容につきましては、掲載提供元である不動産会社に直接送信させていただきます。情報が不足している場合や、事実確認ができない場合などは対応できない場合がございます。
間違いを報告する



































