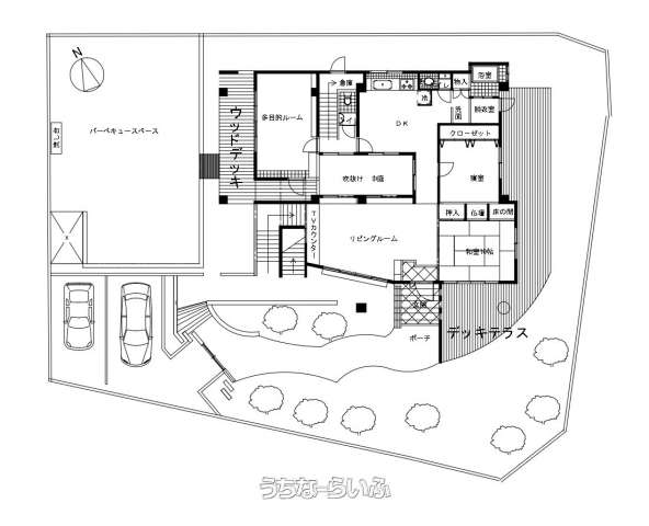
226坪の敷地に146坪の邸宅。松と黒木に囲まれた浦添宮城のプライベート空間 BBQスペースとガレージ付き駐車場9台、来客者用2台、計11台。二世帯住宅。
売買一戸建て浦添市宮城2丁目 8LDK
価格 2億4,000万円
物件情報
| 価格 | 2億4,000万円 | 階数 | 3階建て |
|---|---|---|---|
| 間取り | 8LDK | ||
| 建物面積 | 484.83m² / 146.66坪 | 土地面積 | 731.13m² / 221.16坪 |
| 私道負担 | 無し | 築年月 | 2006年02月(築20年) |
| 駐車場 | 9台 屋内 ※別途来客者用2台あります。 | 地目 | 宅地 |
| 引き渡し | 相談 | 接道方向 / 道路幅員 | 南12m |
| 土地権利 | 所有 | 都市計画 | 市街化区域 |
| 用途地域 | 第一種住居 | 建物構造 | RC(鉄筋コンクリート造) |
| 取引態様 | 仲介 | 所在地 | 浦添市宮城2丁目 |
| 建ぺい率 / 容積率 | 60% / 200% | 交通 | 【バス停】仲西: 徒歩約3分 |
| 価格備考 | - | ||
| 更新日 | 2026/04/07 | 公開期限 | 2026/04/20 |
この物件の設備・条件
| キッチン | IHコンロ 、 コンロ三口以上 、 システムキッチン 、 パントリー(食器・食品の収納庫) 、 食器洗乾燥機 |
|---|---|
| バス・トイレ | バス/トイレ別 、 浴槽 、 シャンプードレッサー 、 独立洗面所 、 浴室乾燥機 、 浴室1坪以上 、 トイレ2ヶ所 、 温水洗浄便座 |
| 家具・家電 | 冷房 |
| セキュリティ | インターフォン 、 電動シャッター |
| 室内設備 | 室内洗濯機置き場 、 出窓 |
| 通信設備 | BSアンテナ 、 CSアンテナ |
| 収納 | シューズボックス 、 全居室収納 |
| 立地・土地特徴 | 南道路 、 整形地 、 平坦地 、 南向き |
| 建物設備 | 上水道 、 下水道 、 オール電化 、 ルーフバルコニー 、 テラス ルーフバルコニー 、 南面バルコニー 、 庭付き 、 庭10坪以上 、 ウッドデッキ 、 掘ごたつ 、 吹抜 |
| 構造 | 耐震構造 、 二世帯住宅 |
| 駐車場 | 駐輪場 |
| その他条件 | 日当たり良し 、 眺望良し |
物件備考
| 備考 | ■現況: 空き家 |
|---|
【掲載物件について】
・「うちなーらいふ」は、より正確な情報の提供を心がけておりますが、物件情報に誤りがある場合は、ご連絡をお願い致します。
・ご報告いただいた内容につきましては、掲載提供元である不動産会社に直接送信させていただきます。情報が不足している場合や、事実確認ができない場合などは対応できない場合がございます。
・本フォームは物件情報の誤りに関する報告専用です。賃貸・売買に関するお問い合わせには対応しておりませんので、あらかじめご了承ください。
こちらをクリックして物件の間違いを報告する。





































