【商談中】見学受付中!!【ZEH水準住宅】小学校・中学校車で4分、車移動5~6分でお買い物通院ができ、すみよい生活圏です
遮熱シート★リフレクティックス★で省エネルギー住宅!インナーガレージも魅力です!
物件情報
| 価格 | 4,880万円 | 階数 | 2階建て |
|---|---|---|---|
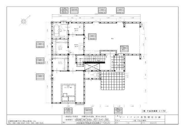
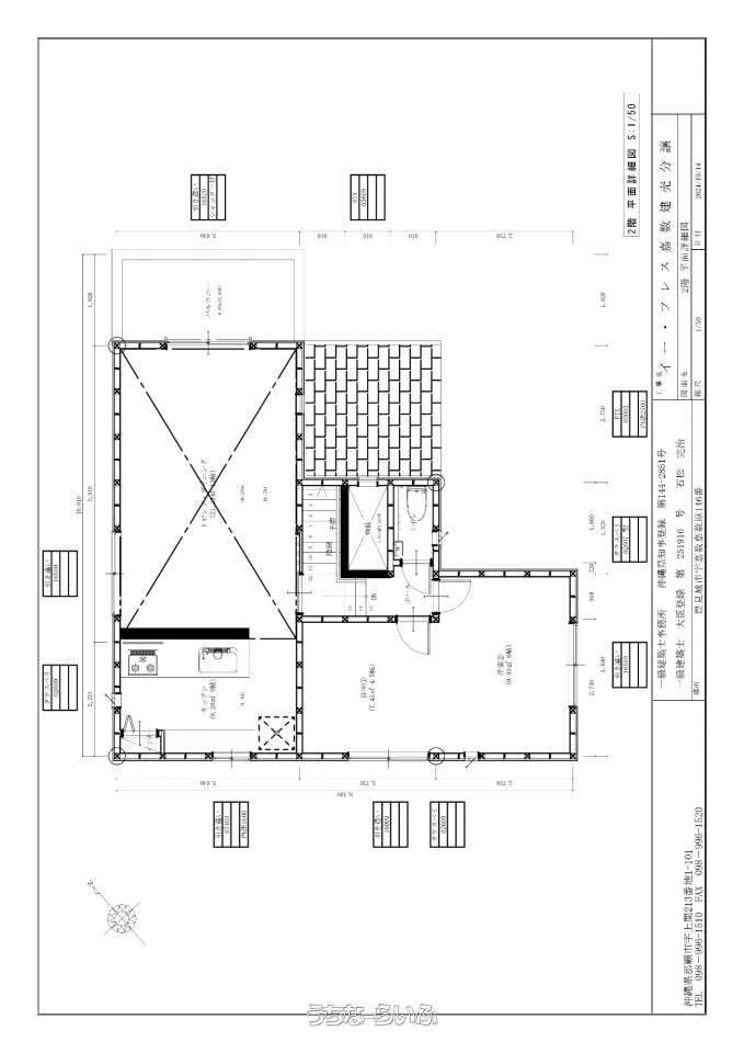
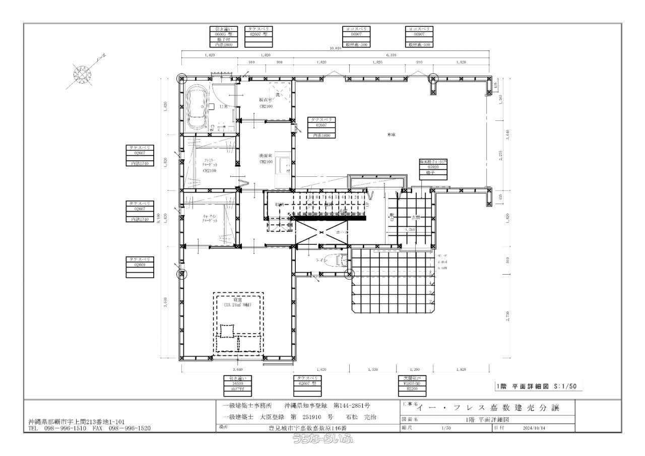
| 間取り | 3LDK ( 洋8 洋4.5 洋6 LDK18) | ||
| 建物面積 | 96.05m² / 29.05坪 | 土地面積 | 197.39m² / 59.71坪 |
| 私道負担 | 無し | 築年月 | 2025年10月(新築) |
| 駐車場 | 2台 並列 •3台目 縦列 | 地目 | 宅地 |
| 引き渡し | 指定有 | 接道方向 / 道路幅員 | 東5m |
| 土地権利 | 所有 | 都市計画 | 市街化区域 |
| 用途地域 | 第一種低層 | 建物構造 | 木造 |
| 取引態様 | 売主 | 所在地 | 豊見城市嘉数 地図 |
| 建ぺい率 / 容積率 | 50% / 100% | 交通 | 【バス停】嘉数公民館前: 徒歩約3分 |
| 価格備考 | 売主のため仲介手数料なし、別途諸経費(100万円~200万円)がかかります | ||
| 更新日 | 2026/01/23 | 公開期限 | 2026/02/05 |
この物件の設備・条件
| キッチン | 省エネ給湯器 、 浄水器 、 ガスコンロ 、 コンロ三口以上 、 対面式キッチン(カウンターキッチン) 、 システムキッチン 、 パントリー(食器・食品の収納庫) 、 食器洗乾燥機 |
|---|---|
| バス・トイレ | バス/トイレ別 、 ユニットバス 、 浴槽 、 独立洗面所 、 浴室乾燥機 、 浴室1坪以上 、 浴室暖房 、 トイレ2ヶ所 、 タンクレストイレ 、 温水洗浄便座 |
| 家具・家電 | 冷房 、 暖房 |
| セキュリティ | インターフォン 、 TVホン(TVモニタ付インターホン) 、 ディンプルキー |
| 室内設備 | 室内洗濯機置き場 |
| 収納 | ウォークインクローゼット 、 シューズインクローク 、 階段下収納 |
| 立地・土地特徴 | 高台に立地 |
| 建物設備 | 上水道 、 下水道 、 複層ガラス 、 24時間換気システム 、 プロパンガス 、 オール洋間 、 庭付き |
| 構造 | バリアフリー 、 デザイナーズ 、 ノンホルムアルデヒド |
| 評価・証明書 | 完了検査済証 、 新築時・増改築時の設計図あり |
| 瑕疵保証あり | 瑕疵保険(国交省指定法人)による保証 |
| 駐車場 | 駐輪場 |
| その他条件 | 日当たり良し 、 眺望良し 、 静かな場所 |
| 設備備考 | 床材は栗を使用、木目×ブラックのナチュラルでかっこいい室内。 |
物件備考
| 備考 | ■現況: 完成済 |
|---|
【うちなーらいふ】は、より正確な情報の提供を心がけておりますが、物件情報に誤りがある場合は、ご連絡をお願い致します。
ご報告いただいた内容につきましては、掲載提供元である不動産会社に直接送信させていただきます。情報が不足している場合や、事実確認ができない場合などは対応できない場合がございます。
間違いを報告する













