エレベーター搭載で約40.5坪を上下移動の負担なくワンフロア感覚に✨2/28までの契約で設備・内装カラーを選択可能🎨開南小まで徒歩12分!みらいエコ補助金対象物件♪屋上付き◆那覇市松尾C区画◆
物件情報
| 価格 | 7,098万円 | 階数 | 3階建て |
|---|---|---|---|
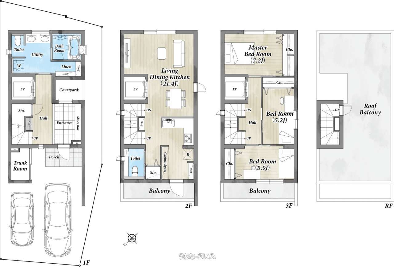
| 間取り | 3LDK ( 洋7.2 洋5.2 洋5.9 LDK21.4 ※ルーフバルコニー付き) | ||
| 建物面積 | 135.98m² / 41.13坪 | 土地面積 | 103.57m² / 31.32坪 |
| 私道負担 | 無し | 築年月 | 2026年06月(新築) |
| 駐車場 | 2台 並列 ※車種により2台駐車が難しい場合がございます。現地にてご確認ください。 | 地目 | 宅地 |
| 引き渡し | 相談 (2026年6月予定) | 接道方向 / 道路幅員 | 北4m |
| 土地権利 | 所有 | 都市計画 | 市街化区域 |
| 用途地域 | 第一種住居 | 建物構造 | RC(鉄筋コンクリート造) |
| 取引態様 | 売主 | 所在地 | 那覇市松尾2丁目 地図 |
| 建ぺい率 / 容積率 | 60% / 160% | 交通 | 【バス停】開南: 徒歩約4分 |
| 価格備考 | ※当社『売主』の直接取引の為、仲介手数料はかかりません! | ||
| 更新日 | 2026/03/19 | 公開期限 | 2026/04/01 |
この物件の設備・条件
| キッチン | 給湯 、 ガスコンロ 、 コンロ三口以上 、 システムキッチン 、 食器洗乾燥機 |
|---|---|
| バス・トイレ | バス/トイレ別 、 ユニットバス 、 浴槽 、 シャンプードレッサー 、 独立洗面所 、 浴室1坪以上 、 トイレ2ヶ所 、 温水洗浄便座 |
| セキュリティ | インターフォン 、 TVホン(TVモニタ付インターホン) 、 ディンプルキー |
| 室内設備 | 室内洗濯機置き場 |
| 収納 | シューズインクローク 、 全居室収納 |
| 立地・土地特徴 | 平坦地 |
| 建物設備 | 上水道 、 24時間換気システム 、 プロパンガス 、 オール洋間 、 ルーフバルコニー |
| 瑕疵保証あり | 瑕疵保険(国交省指定法人)による保証 |
| その他条件 | 静かな場所 |
物件備考
| 備考 | ◆那覇市松尾C区画◆(ZEH水準省エネ住宅) ■現況: 建築中 ■建築確認番号: 第 沖確R07160193 号 |
|---|
【掲載物件について】
・「うちなーらいふ」は、より正確な情報の提供を心がけておりますが、物件情報に誤りがある場合は、ご連絡をお願い致します。
・ご報告いただいた内容につきましては、掲載提供元である不動産会社に直接送信させていただきます。情報が不足している場合や、事実確認ができない場合などは対応できない場合がございます。
・本フォームは物件情報の誤りに関する報告専用です。賃貸・売買に関するお問い合わせには対応しておりませんので、あらかじめご了承ください。
こちらをクリックして物件の間違いを報告する。

































