子育て補助金40万円対象!内間小学校まで徒歩7分、神森中学校まで徒歩2分!子育てにぴったりな立地♪家事室&リネン庫のある暮らしで、暮らしの質がワンランクアップ✨ZEH水準省エネ住宅/RC造/高気密高断熱/屋上付き◆浦添市内間B区画
物件情報
| 価格 | 5,780万円 | 階数 | 3階建て | 
|---|---|---|---|
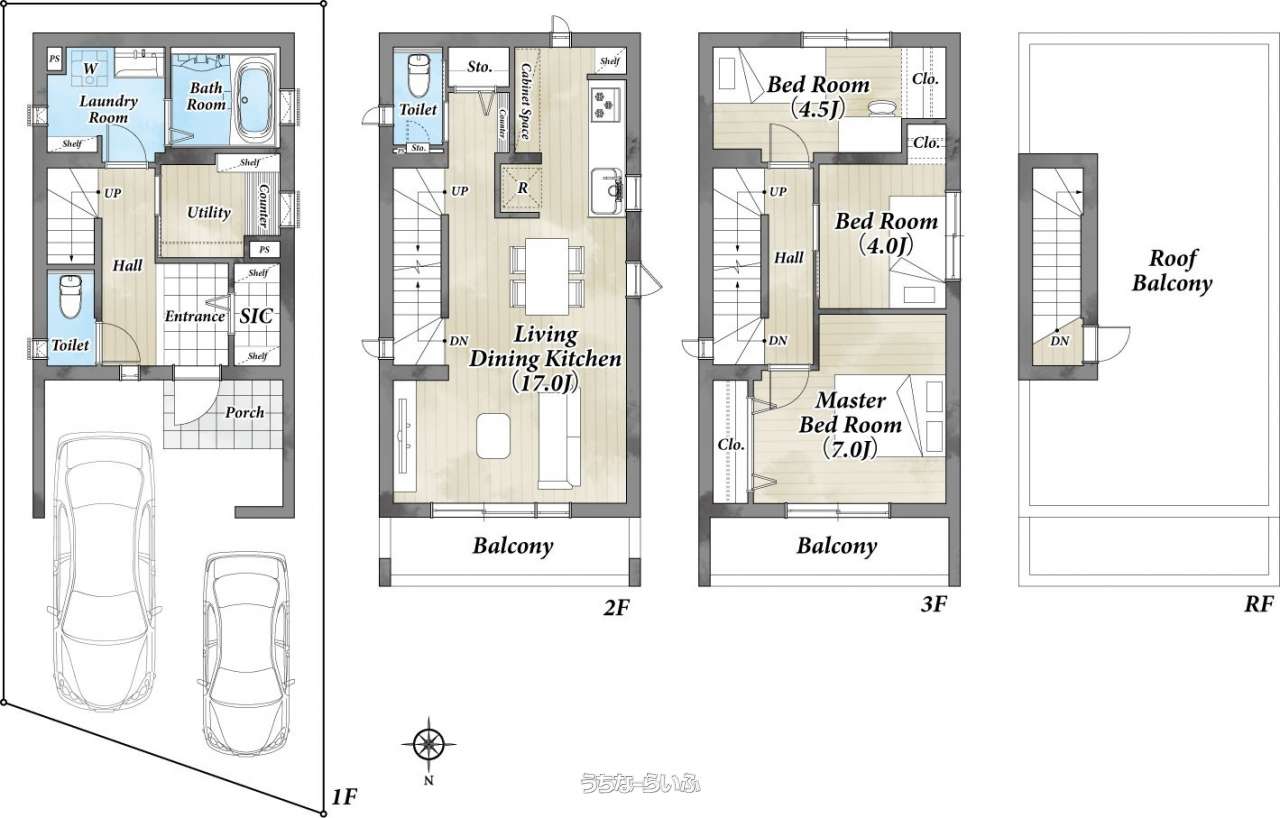
| 間取り | 3LDK ( 洋7 洋4 洋4.5 LDK17 ※ルーフバルコニー付き) | ||
| 建物面積 | 119m² / 35.99坪 | 土地面積 | 73.7m² / 22.29坪 | 
| 私道負担 | 無し | 築年月 | 2026年04月(新築) | 
| 駐車場 | 2台 並列 ※車種により2台駐車が難しい場合がございます。現地にてご確認ください。 | 地目 | 宅地 | 
| 引き渡し | 相談 (2026年4月予定) | 接道方向 / 道路幅員 | 北19m | 
| 土地権利 | 所有 | 都市計画 | 市街化区域 | 
| 用途地域 | 第一種中高層 | 建物構造 | RC(鉄筋コンクリート造) | 
| 取引態様 | 売主 | 所在地 | 浦添市内間1丁目 地図 | 
| 建ぺい率 / 容積率 | 60% / 150% | 交通 | 【バス停】後原(浦添市): 徒歩約2分 | 
| 価格備考 | ※当社『売主』の直接取引の為、仲介手数料はかかりません! | ||
| 更新日 | 2025/10/27 | 公開期限 | 2025/11/09 | 
この物件の設備・条件
| キッチン | 給湯 、 ガスコンロ 、 コンロ三口以上 、 システムキッチン 、 食器洗乾燥機 | 
|---|---|
| バス・トイレ | バス/トイレ別 、 ユニットバス 、 浴槽 、 シャンプードレッサー 、 独立洗面所 、 浴室1坪以上 、 トイレ2ヶ所 、 温水洗浄便座 | 
| セキュリティ | インターフォン 、 TVホン(TVモニタ付インターホン) 、 ディンプルキー | 
| 室内設備 | 室内洗濯機置き場 | 
| 収納 | シューズインクローク 、 全居室収納 | 
| 立地・土地特徴 | 平坦地 | 
| 建物設備 | 上水道 、 下水道 、 24時間換気システム 、 プロパンガス 、 オール洋間 、 ルーフバルコニー | 
| 瑕疵保証あり | 瑕疵保険(国交省指定法人)による保証 | 
| その他条件 | 静かな場所 | 
物件備考
| 備考 | ◆浦添市内間B区画◆(ZEH水準省エネ住宅) ■現況: 建築中 ■建築確認番号: 第 沖確R07170040 号 | 
|---|
【うちなーらいふ】は、より正確な情報の提供を心がけておりますが、物件情報に誤りがある場合は、ご連絡をお願い致します。
ご報告いただいた内容につきましては、掲載提供元である不動産会社に直接送信させていただきます。情報が不足している場合や、事実確認ができない場合などは対応できない場合がございます。
間違いを報告する
 住居用
 住居用 事業用
 事業用 土地
 土地 駐車場
 駐車場 土地
 土地 マンション
 マンション 一戸建て
 一戸建て その他
 その他

























