今帰仁ヴィラ一戸建て、草原の小さな家(ログハウス)。土地分筆予定2棟現場約70坪。
 売買一戸建て今帰仁村玉城 1ルーム
売買一戸建て今帰仁村玉城 1ルーム
価格 1,450万円
物件情報
| 価格 | 1,450万円 | 階数 | 1階建て | 
|---|---|---|---|
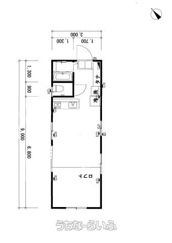
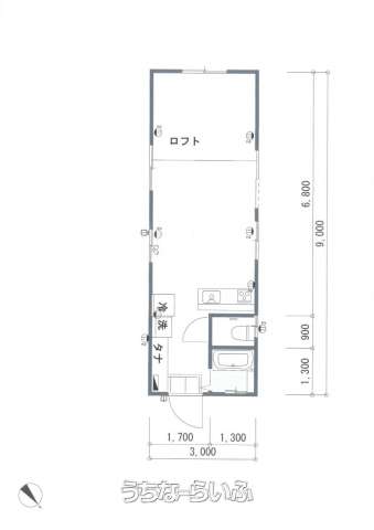
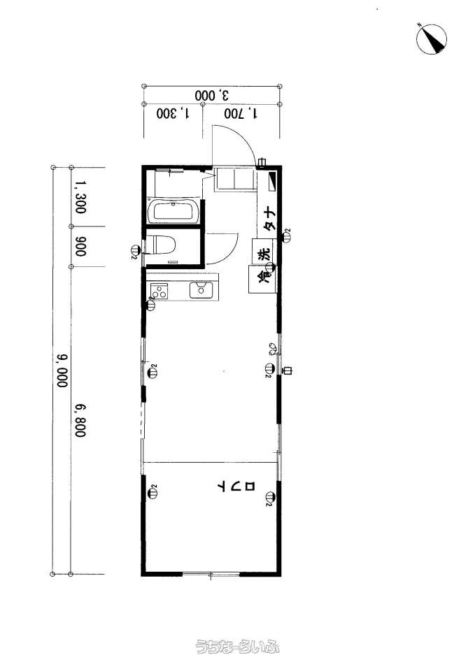
| 間取り | 1ルーム ( 洋12 ※浴室窓有・トイレ窓有別・ロフト約2帖。天井高、高いとこで2.6m。) | ||
| 建物面積 | 27m² / 8.16坪 | 土地面積 | 233m² / 70.48坪 | 
| 私道負担 | 無し | 築年月 | 2025年11月 | 
| 駐車場 | 2台 並列 | 地目 | 畑 | 
| 引き渡し | 指定有 (R7年11月) | 接道方向 / 道路幅員 | 東3m | 
| 土地権利 | 所有 | 都市計画 | 都市計画区域外 | 
| 用途地域 | 無指定 | 建物構造 | 木造 | 
| 取引態様 | 専属専任媒介 | 所在地 | 今帰仁村玉城 | 
| 建ぺい率 / 容積率 | 70% / 200% | 交通 | 【バス停】今帰仁村役場: 徒歩約9分 | 
| 価格備考 | 新築の為保存登記がかかります。 | ||
| 更新日 | 2025/10/24 | 公開期限 | 2025/11/06 | 
この物件の設備・条件
| キッチン | 給湯 | 
|---|---|
| バス・トイレ | バス/トイレ別 、 ユニットバス 、 浴槽 | 
| 家具・家電 | 冷房 、 暖房 | 
| 室内設備 | 室内洗濯機置き場 | 
| 収納 | シューズボックス | 
| 立地・土地特徴 | 整形地 、 平坦地 | 
| 建物設備 | 上水道 、 プロパンガス 、 庭付き 、 庭10坪以上 、 ロフト | 
| 構造 | ノンホルムアルデヒド | 
| その他条件 | 日当たり良し 、 静かな場所 | 
| 設備備考 | 24時間換気システム、ノンホルムアルデヒド、天井高2.5m以上、閑静な住宅地、浴室トイレに窓有、照明器具シーリング付、プロパンガス、電気、上水道、浄化槽側溝排水、エアコン、火災警報器、駐車場並列2台。 | 
物件備考
| 備考 | 東側公道駐車場並列2台可:東向き西は小高い丘に樹木があり西日が遮られます。前面棟無し3面採光、24時間換気システム、ノンホルムアルデヒド、天井高2.5m以上、閑静な住宅地、浴室トイレに窓有、照明器具シーリング付、プロパンガス、電気、上水道、浄化槽側溝排水、エアコン、火災警報器、駐車場並列2台。 ■現況: 未着工 ■建築確認番号: R7-52 | 
|---|
【うちなーらいふ】は、より正確な情報の提供を心がけておりますが、物件情報に誤りがある場合は、ご連絡をお願い致します。
ご報告いただいた内容につきましては、掲載提供元である不動産会社に直接送信させていただきます。情報が不足している場合や、事実確認ができない場合などは対応できない場合がございます。
間違いを報告する
 住居用
 住居用 事業用
 事業用 土地
 土地 駐車場
 駐車場 土地
 土地 マンション
 マンション 一戸建て
 一戸建て その他
 その他







