海まで30秒、民泊可能なように消防設備も設置しています♪
観光需要の高いエリアに位置し、収益運用をご検討の方にもおすすめです。
周辺環境も良好で、宿泊拠点として利便性の高い立地です!
売買一戸建て北谷町北前 3LDK
価格 6,000万円
物件情報
| 価格 | 6,000万円 | 階数 | 2階建て |
|---|---|---|---|
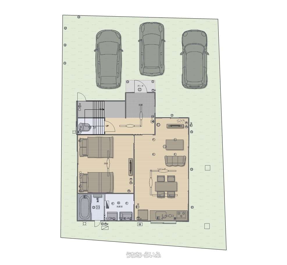
| 間取り | 3LDK ( 洋8 洋6 洋6 LDK15) | ||
| 建物面積 | 80.15m² / 24.24坪 | 土地面積 | 136.61m² / 41.32坪 |
| 私道負担 | 無し | 築年月 | 1995年(築31年) |
| 駐車場 | 3台 並列 ※軽自動車のみでしたら4台駐車できます。 | 地目 | 宅地 |
| 引き渡し | 指定有 (3月末) | 接道方向 / 道路幅員 | 北東4.4m |
| 土地権利 | 所有 | 都市計画 | 市街化区域 |
| 用途地域 | 第一種住居 | 建物構造 | RCB(鉄筋コンクリートブロック造) |
| 取引態様 | 売主 | 所在地 | 北谷町北前 |
| 建ぺい率 / 容積率 | 60% / 200% | 交通 | 【バス停】北前: 徒歩約8分 |
| 価格備考 | 旅館業法申請代行、弊社行政書士が承ります!代行手数料165,000円(税込)です! | ||
| 更新日 | 2026/03/19 | 公開期限 | 2026/04/01 |
この物件の設備・条件
| キッチン | 給湯 、 IHコンロ 、 システムキッチン 、 食器洗乾燥機 |
|---|---|
| バス・トイレ | バス/トイレ別 、 浴槽 、 浴室乾燥機 、 トイレ2ヶ所 、 温水洗浄便座 |
| 家具・家電 | 冷房 、 暖房 、 乾燥機 |
| セキュリティ | インターフォン 、 TVホン(TVモニタ付インターホン) 、 ディンプルキー |
| 室内設備 | 室内洗濯機置き場 |
| 収納 | シューズボックス |
| 立地・土地特徴 | 整形地 、 平坦地 |
| 建物設備 | 上水道 、 下水道 、 プロパンガス 、 テラス ルーフバルコニー 、 吹抜 |
| 構造 | 全居室6畳以上 |
| 評価・証明書 | 完了検査済証 |
| 瑕疵保証あり | 瑕疵保険(国交省指定法人)による保証 |
| 駐車場 | 駐輪場 |
| その他条件 | 日当たり良し 、 眺望良し 、 静かな場所 |
| リフォーム・リノベーション | 水回り設備交換(キッチン・浴室・洗面・トイレ) 、 内装(床・壁・天井など) 、 外装・その他(屋根・外壁など) 、 リノベーション済 |
物件備考
| 備考 | ■現況: 建築中 ■建築確認番号: 第567号 |
|---|
【掲載物件について】
・「うちなーらいふ」は、より正確な情報の提供を心がけておりますが、物件情報に誤りがある場合は、ご連絡をお願い致します。
・ご報告いただいた内容につきましては、掲載提供元である不動産会社に直接送信させていただきます。情報が不足している場合や、事実確認ができない場合などは対応できない場合がございます。
・本フォームは物件情報の誤りに関する報告専用です。賃貸・売買に関するお問い合わせには対応しておりませんので、あらかじめご了承ください。
こちらをクリックして物件の間違いを報告する。




