【美里仲原町】区画整理地内に中古戸建て出ました! 生活徒歩圏内に銀行、飲食店などそろっており、平坦地なので徒歩や自転車が乗りやすい町となっております。
物件情報
| 価格 | 7,880万円 | 階数 | 2階建て |
|---|---|---|---|
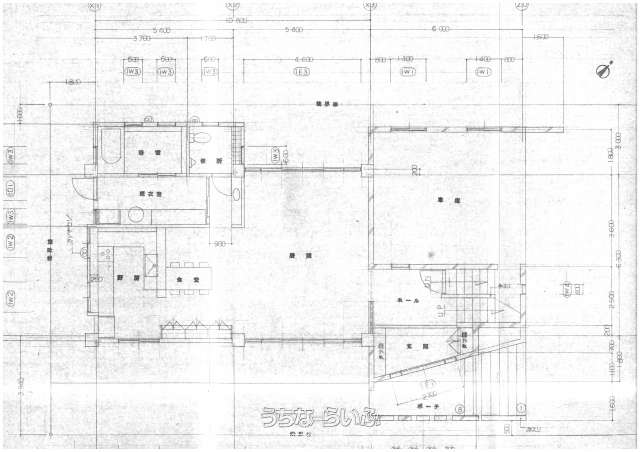
| 間取り | 2LDK ( 洋16.3 洋23.5 LDK34.6 ※1階に事務所(18.2帖)、2階に「事務所兼住宅」になります。) | ||
| 建物面積 | 223.92m² / 67.73坪 | 土地面積 | 331m² / 100.12坪 |
| 私道負担 | 無し | 築年月 | 2001年05月(築25年) |
| 駐車場 | 3台 並列 屋内 軽 ※乗用車2台、軽自動車1台は置けます。 | 地目 | 畑 |
| 引き渡し | 相談 | 接道方向 / 道路幅員 | 東6m |
| 土地権利 | 所有 | 都市計画 | 非線引 |
| 用途地域 | 第一種低層 | 建物構造 | RC(鉄筋コンクリート造) |
| 取引態様 | 専任媒介 | 所在地 | 沖縄市美里仲原町 |
| 建ぺい率 / 容積率 | 50% / 100% | 交通 | 【バス停】美原一丁目(胡屋向け): 徒歩約6分 |
| 価格備考 | - | ||
| 更新日 | 2026/05/10 | 公開期限 | 2026/05/23 |
この物件の設備・条件
| キッチン | 対面式キッチン(カウンターキッチン) |
|---|---|
| バス・トイレ | バス/トイレ別 |
| 収納 | シューズボックス |
| 立地・土地特徴 | 整形地 、 平坦地 |
| 建物設備 | 上水道 、 下水道 、 オール洋間 、 ルーフバルコニー 、 南面バルコニー 、 庭付き 、 庭10坪以上 |
| 構造 | 全居室6畳以上 |
| 評価・証明書 | 完了検査済証 |
| その他条件 | 日当たり良し 、 静かな場所 |
物件備考
| 備考 | ※現在、所有者様が居住中のため内覧は予約制となっております。 ご了承下さい。 ■現況: 所有者居住中 |
|---|
【掲載物件について】
・「うちなーらいふ」は、より正確な情報の提供を心がけておりますが、物件情報に誤りがある場合は、ご連絡をお願い致します。
・ご報告いただいた内容につきましては、掲載提供元である不動産会社に直接送信させていただきます。情報が不足している場合や、事実確認ができない場合などは対応できない場合がございます。
・本フォームは物件情報の誤りに関する報告専用です。賃貸・売買に関するお問い合わせには対応しておりませんので、あらかじめご了承ください。
こちらをクリックして物件の間違いを報告する。

















