全4棟のRC平家住宅 <B棟>
収納充実!家事動線GOOD!並列4台駐車可(車種要確認)駐車場からチラッと海が見えます。
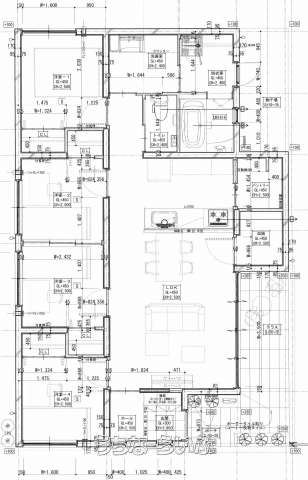
売買一戸建て金武町金武 4LDK
価格 4,450万円
物件情報
| 価格 | 4,450万円 | 階数 | 1階建て |
|---|---|---|---|
| 間取り | 4LDK ( 洋4.5 洋4.5 洋4.5 洋5 LDK18) | ||
| 建物面積 | 93.48m² / 28.27坪 | 土地面積 | 205.67m² / 62.21坪 |
| 私道負担 | 無し | 築年月 | 2025年10月(新築) |
| 駐車場 | 3台 並列 ※車種によっては4台可能 | 地目 | 宅地 |
| 引き渡し | 相談 | 接道方向 / 道路幅員 | 西6m |
| 土地権利 | 所有 | 都市計画 | 都市計画区域外 |
| 用途地域 | 無指定 | 建物構造 | RC(鉄筋コンクリート造) |
| 取引態様 | 一般媒介 | 所在地 | 金武町金武 地図 |
| 建ぺい率 / 容積率 | 70% / 400% | 交通 | - |
| 価格備考 | - | ||
| 更新日 | 2026/02/11 | 公開期限 | 2026/02/24 |
この物件の設備・条件
| キッチン | 給湯 、 ガスコンロ 、 コンロ三口以上 、 システムキッチン 、 パントリー(食器・食品の収納庫) |
|---|---|
| バス・トイレ | バス/トイレ別 、 ユニットバス 、 独立洗面所 |
| 家具・家電 | 乾燥機 |
| セキュリティ | インターフォン 、 TVホン(TVモニタ付インターホン) |
| 室内設備 | 室内洗濯機置き場 |
| 収納 | シューズインクローク 、 全居室収納 |
| 立地・土地特徴 | 整形地 、 平坦地 |
| 建物設備 | 上水道 、 下水道 、 プロパンガス |
| 瑕疵保証あり | 瑕疵保険(国交省指定法人)による保証 |
| その他条件 | 静かな場所 |
物件備考
| 備考 | *A棟4400万円(予約あり) *B棟4450万円 *C棟4450万円 *D棟4450万円 ■現況: 完成済 |
|---|
【うちなーらいふ】は、より正確な情報の提供を心がけておりますが、物件情報に誤りがある場合は、ご連絡をお願い致します。
ご報告いただいた内容につきましては、掲載提供元である不動産会社に直接送信させていただきます。情報が不足している場合や、事実確認ができない場合などは対応できない場合がございます。
間違いを報告する






























