【価格変更!】海まで歩いて数分!建物裏は緑豊かな山と畑。
自然を感じるエリアです!139坪の広い土地に理想の平家住宅。
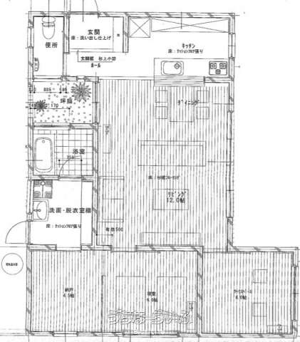
杉板のフローリング・全室引き戸(襖スタイル)の内装がナチュラルな雰囲気でGOODす♫
売買一戸建て恩納村真栄田 2LDK
価格 3,980万円
物件情報
| 価格 | 3,980万円 | 階数 | 1階建て |
|---|---|---|---|
| 間取り | 2LDK ( 洋6 洋6 LDK12 ※納戸4.5帖あり(お部屋スペースとしても利用はOK)) | ||
| 建物面積 | 77.88m² / 23.55坪 | 土地面積 | 461.33m² / 139.55坪 |
| 私道負担 | 無し | 築年月 | 2007年03月(築19年) |
| 駐車場 | 2台 ※現在は、玄関前に2台ありますが、お庭のスペースを活用すれば4〜5台可能です | 地目 | 宅地 |
| 引き渡し | 相談 | 接道方向 / 道路幅員 | 北4m |
| 土地権利 | 所有 | 都市計画 | 都市計画区域外 |
| 用途地域 | 無指定 | 建物構造 | RC(鉄筋コンクリート造) |
| 取引態様 | 一般媒介 | 所在地 | 恩納村真栄田 地図 |
| 建ぺい率 / 容積率 | - / 200% | 交通 | - |
| 価格備考 | - | ||
| 更新日 | 2026/04/22 | 公開期限 | 2026/05/05 |
この物件の設備・条件
| キッチン | 給湯 、 ガスコンロ 、 対面式キッチン(カウンターキッチン) 、 システムキッチン |
|---|---|
| バス・トイレ | バス/トイレ別 、 浴槽 、 独立洗面所 |
| 室内設備 | 室内洗濯機置き場 |
| 立地・土地特徴 | 平坦地 、 隣の建物との間隔が広い |
| 建物設備 | 上水道 、 下水道 、 プロパンガス 、 オール洋間 、 庭付き |
| その他条件 | 静かな場所 |
物件備考
| 備考 | ■現況: 所有者居住中 |
|---|
【掲載物件について】
・「うちなーらいふ」は、より正確な情報の提供を心がけておりますが、物件情報に誤りがある場合は、ご連絡をお願い致します。
・ご報告いただいた内容につきましては、掲載提供元である不動産会社に直接送信させていただきます。情報が不足している場合や、事実確認ができない場合などは対応できない場合がございます。
・本フォームは物件情報の誤りに関する報告専用です。賃貸・売買に関するお問い合わせには対応しておりませんので、あらかじめご了承ください。
こちらをクリックして物件の間違いを報告する。









