米軍賃貸中(月)25万円収入あり。
築浅物件!人気の長浜エリアです
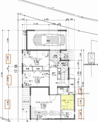
広々リビング約33畳!バス・トイレ2カ所あり
売買一戸建て読谷村長浜 3LDK
価格 6,200万円
物件情報
| 価格 | 6,200万円 | 階数 | 2階建て |
|---|---|---|---|
| 間取り | 3LDK ( 洋6.5 洋6.5 洋12.6 LDK33) | ||
| 建物面積 | 158.2m² / 47.86坪 | 土地面積 | 223.06m² / 67.48坪 |
| 私道負担 | 無し | 築年月 | 2021年01月(築5年) |
| 駐車場 | 3台 縦列 屋内 ※ガレージあり、縦列(車種によっては4台可能) | 地目 | 宅地 |
| 引き渡し | 相談 | 接道方向 / 道路幅員 | 北西4m |
| 土地権利 | 所有 | 都市計画 | 非線引 |
| 用途地域 | 第一種低層 | 建物構造 | RC(鉄筋コンクリート造) |
| 取引態様 | 一般媒介 | 所在地 | 読谷村長浜 地図 |
| 建ぺい率 / 容積率 | 50% / 100% | 交通 | 【バス停】瀬名波バス停: 徒歩約3分 |
| 価格備考 | - | ||
| 更新日 | 2026/03/09 | 公開期限 | 2026/03/22 |
この物件の設備・条件
| キッチン | 給湯 、 対面式キッチン(カウンターキッチン) 、 システムキッチン |
|---|---|
| バス・トイレ | バス/トイレ別 、 ユニットバス 、 浴槽 、 シャンプードレッサー 、 独立洗面所 、 トイレ2ヶ所 |
| 室内設備 | 室内洗濯機置き場 |
| 収納 | ウォークインクローゼット 、 全居室収納 、 階段下収納 |
| 立地・土地特徴 | 平坦地 |
| 建物設備 | 上水道 、 プロパンガス 、 オール洋間 |
| 構造 | 全居室6畳以上 |
| その他条件 | 日当たり良し 、 静かな場所 |
物件備考
| 備考 | *ガレージ付き *渡慶次小学校徒歩圏内 *バスターミナル徒歩圏内 ■現況: 賃貸中 |
|---|
【掲載物件について】
・「うちなーらいふ」は、より正確な情報の提供を心がけておりますが、物件情報に誤りがある場合は、ご連絡をお願い致します。
・ご報告いただいた内容につきましては、掲載提供元である不動産会社に直接送信させていただきます。情報が不足している場合や、事実確認ができない場合などは対応できない場合がございます。
・本フォームは物件情報の誤りに関する報告専用です。賃貸・売買に関するお問い合わせには対応しておりませんので、あらかじめご了承ください。
こちらをクリックして物件の間違いを報告する。











