★リフォーム要★古民家好き必見★植栽が素敵です★美里工業高校裏門からすぐ!・高原小学校近く★静かな住宅街!コンビニ・スーパーも近いです!
売買一戸建て沖縄市泡瀬5丁目 3DK
価格 2,500万円
物件情報
| 価格 | 2,500万円 | 階数 | 1階建て |
|---|---|---|---|
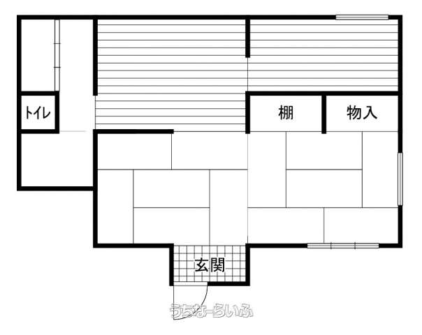
| 間取り | 3DK ( 和6 和5.5 和4.5 DK6) | ||
| 建物面積 | 54m² / 16.34坪 | 土地面積 | 149m² / 45.07坪 |
| 私道負担 | 無し | 築年月 | 1972年10月(築53年) |
| 駐車場 | ナシ | 地目 | 宅地 |
| 引き渡し | 指定有 (9月頃) | 接道方向 / 道路幅員 | - |
| 土地権利 | 所有 | 都市計画 | 市街化区域 |
| 用途地域 | 第一種低層 | 建物構造 | - |
| 取引態様 | 専属専任媒介 | 所在地 | 沖縄市泡瀬5丁目 |
| 建ぺい率 / 容積率 | - / - | 交通 | - |
| 価格備考 | - | ||
| 更新日 | 2025/10/31 | 公開期限 | 2025/11/13 |
この物件の設備・条件
| バス・トイレ | バス/トイレ別 |
|---|---|
| 収納 | シューズボックス |
| 立地・土地特徴 | 角地 、 平坦地 |
| 建物設備 | 上水道 、 下水道 |
物件備考
| 備考 | ★リフォーム要★古民家好き必見★植栽が素敵です★美里工業高校裏門からすぐ!・高原小学校近く★静かな住宅街!コンビニ・スーパーも近いです! ■現況: 空き家 |
|---|
【うちなーらいふ】は、より正確な情報の提供を心がけておりますが、物件情報に誤りがある場合は、ご連絡をお願い致します。
ご報告いただいた内容につきましては、掲載提供元である不動産会社に直接送信させていただきます。情報が不足している場合や、事実確認ができない場合などは対応できない場合がございます。
間違いを報告する













