糸満市西崎に位置する、2025年6月完成の新築デザイナーズ住宅です。価格は4,598万円、間取りは4SLDK(16帖のLDK+納戸)で、家族の成長に合わせて柔軟に使える設計が特徴です。
糸満市西崎に位置する,新築デザイナーズ住宅です。価格は4,598万円、間取りは4SLDkで、家族の成長に合わせて柔軟に使える設計が特徴です。
最大の魅力は、子育て世帯に最適な立地環境です。西崎小学校まで徒歩約3分、西崎中学校まで徒歩約10分と近く、保育園も徒歩圏内に揃っています。駐車スペースは並列で3台分確保されており、日々の送り迎えや買い物にも便利です。
売買一戸建て糸満市西崎2丁目 4SLDK
価格 4,598万円
物件情報
| 価格 | 4,598万円 | 階数 | 2階建て |
|---|---|---|---|
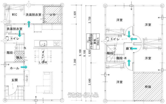
| 間取り | 4SLDK ( 洋6 洋5 洋4.5 洋4.5 SLDK16) | ||
| 建物面積 | 89.43m² / 27.05坪 | 土地面積 | 107.25m² / 32.44坪 |
| 私道負担 | 無し | 築年月 | 2025年06月(新築) |
| 駐車場 | 3台 並列 | 地目 | 宅地 |
| 引き渡し | 相談 | 接道方向 / 道路幅員 | 北、 北東、 東、 南東、 南5.9m、 南西、 西、 北西 |
| 土地権利 | 所有 | 都市計画 | 市街化区域 |
| 用途地域 | 無指定 | 建物構造 | 木造 |
| 取引態様 | 売主 | 所在地 | 糸満市西崎2丁目 地図 |
| 建ぺい率 / 容積率 | 60% / 200% | 交通 | - |
| 価格備考 | - | ||
| 更新日 | 2026/01/29 | 公開期限 | 2026/02/11 |
この物件の設備・条件
| キッチン | 省エネ給湯器 、 ガスコンロ 、 コンロ三口以上 、 対面式キッチン(カウンターキッチン) 、 食器洗乾燥機 |
|---|---|
| バス・トイレ | バス/トイレ別 、 ユニットバス 、 浴槽 、 シャンプードレッサー 、 独立洗面所 、 追焚機能 、 浴室乾燥機 、 浴室1坪以上 、 浴室暖房 、 トイレ2ヶ所 、 タンクレストイレ 、 温水洗浄便座 |
| 家具・家電 | 冷房 、 暖房 、 乾燥機 |
| セキュリティ | TVホン(TVモニタ付インターホン) 、 ディンプルキー |
| 室内設備 | 室内洗濯機置き場 |
| 収納 | ウォークインクローゼット 、 シューズボックス 、 床下収納 、 階段下収納 |
| 立地・土地特徴 | 南道路 、 整形地 、 平坦地 、 南向き |
| 建物設備 | 上水道 、 下水道 、 複層ガラス 、 24時間換気システム 、 プロパンガス 、 オール洋間 、 吹抜 |
| 構造 | バリアフリー 、 デザイナーズ 、 制震構造 、 耐震構造 、 ノンホルムアルデヒド 、 低炭素住宅 |
| 評価・証明書 | 完了検査済証 、 新築時・増改築時の設計図あり |
| 瑕疵保証あり | 瑕疵保険(国交省指定法人)による保証 、 瑕疵保証(不動産会社独自)付 |
| その他条件 | 日当たり良し 、 静かな場所 |
物件備考
| 備考 | ■現況: 完成済 |
|---|
【うちなーらいふ】は、より正確な情報の提供を心がけておりますが、物件情報に誤りがある場合は、ご連絡をお願い致します。
ご報告いただいた内容につきましては、掲載提供元である不動産会社に直接送信させていただきます。情報が不足している場合や、事実確認ができない場合などは対応できない場合がございます。
間違いを報告する


















