サンエーしおざきシティー近く!!土地面積約51坪・中古戸建て出ました☆小規模店舗スペース付き!前面道路広々・周辺環境充実♪お問い合わせお待ちしております!
物件情報
| 価格 | 2,900万円 | 階数 | 2階建て |
|---|---|---|---|
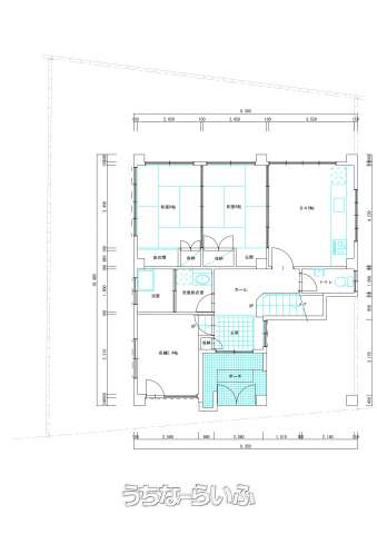
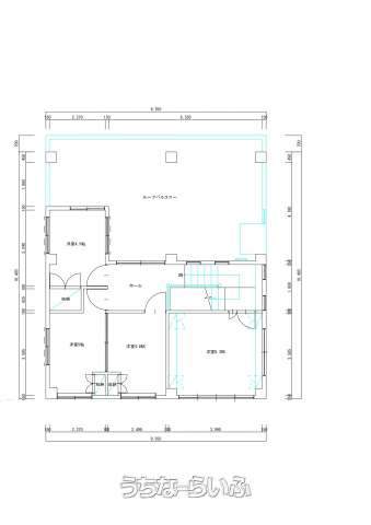
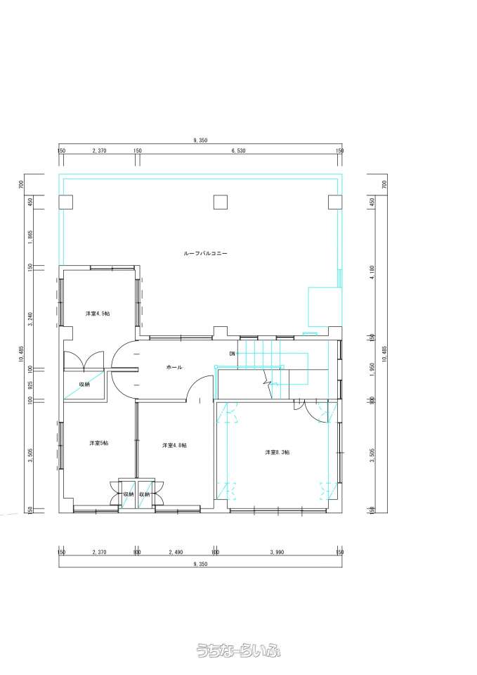
| 間取り | 6DK ( 洋8.3 洋4.8 洋5 洋4.5 和6 和6 DK9 ※店舗(5.4帖)) | ||
| 建物面積 | 123.41m² / 37.33坪 | 土地面積 | 169.09m² / 51.14坪 |
| 私道負担 | 無し | 築年月 | 1982年08月(築43年) |
| 駐車場 | 3台 ※車種により4台可能 | 地目 | 宅地 |
| 引き渡し | 指定有 (2026年5月末) | 接道方向 / 道路幅員 | 北 |
| 土地権利 | 所有 | 都市計画 | 市街化区域 |
| 用途地域 | 第二種中高層 | 建物構造 | RCB(鉄筋コンクリートブロック造) |
| 取引態様 | 専任媒介 | 所在地 | 糸満市糸満 地図 |
| 建ぺい率 / 容積率 | 60% / 200% | 交通 | 【バス停】双子橋: 徒歩約3分 |
| 価格備考 | - | ||
| 更新日 | 2025/10/27 | 公開期限 | 2025/11/09 |
この物件の設備・条件
| バス・トイレ | バス/トイレ別 |
|---|---|
| 室内設備 | 室内洗濯機置き場 、 出窓 |
物件備考
| 備考 | ◆糸満南小学校まで徒歩14分(約1.1km) ◆糸満中学校まで徒歩17分(約1.3km) ◆琉球銀行 糸満支店まで徒歩3分(約190m) ◆ローソン 糸満南近隣公園前店まで徒歩4分(約300m) ◆沖縄銀行 糸満支店まで徒歩4分(約300m) ◆サンエー しおざきシティまで徒歩5分(約400m) ◆糸満市役所まで徒歩9分(約650m) ■現況: 所有者居住中 |
|---|
【うちなーらいふ】は、より正確な情報の提供を心がけておりますが、物件情報に誤りがある場合は、ご連絡をお願い致します。
ご報告いただいた内容につきましては、掲載提供元である不動産会社に直接送信させていただきます。情報が不足している場合や、事実確認ができない場合などは対応できない場合がございます。
間違いを報告するManaEstate
| 住所 | 沖縄県中城村南上原 361-12 133街区13画地 地図 |
|---|---|
| 営業時間 | 10:00〜17:00 |
| 定休日 | 土・日・祝日、年末年始、その他 ※出入りが多いため、来店の際は事前連絡をよろしくお願い致します。 |
| 免許 | 沖縄県知事免許 (1)第5787号 |




































