【石垣市 平得】 価格改定13,500万円→11,500万円 国道沿い平得交差点よこ 石垣市役所・八重山病院・大型スパー近く ご融資の斡旋を行っております
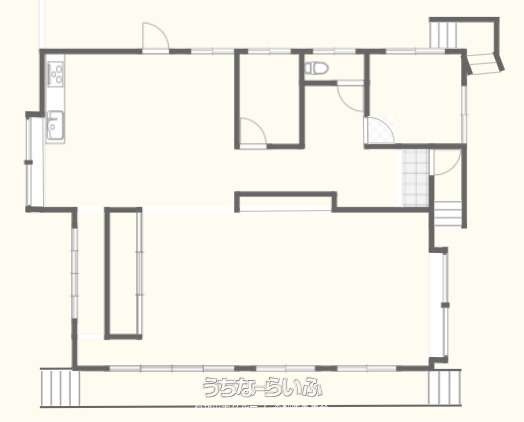
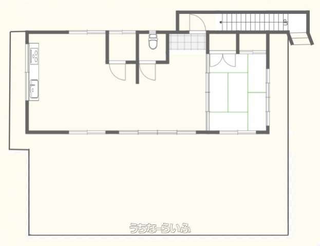
売買一戸建て石垣市平得 5LDK
価格 1億1,500万円
物件情報
| 価格 | 1億1,500万円 | 階数 | 2階建て |
|---|---|---|---|
| 間取り | 5LDK ( 洋9 洋6 洋6 洋4.5 和6 LDK15 ※1F(3LDKを店舗に改築)105㎡・2F(1LDK)42.04㎡) | ||
| 建物面積 | 147.04m² / 44.48坪 | 土地面積 | 1153.18m² / 348.84坪 |
| 私道負担 | 無し | 築年月 | 1977年07月(築48年) |
| 駐車場 | 8台 | 地目 | 宅地 |
| 引き渡し | 即日 | 接道方向 / 道路幅員 | 東25m |
| 土地権利 | 所有 | 都市計画 | 非線引 |
| 用途地域 | 第一種住居・第一種低層 | 建物構造 | RCB(鉄筋コンクリートブロック造) |
| 取引態様 | 専任媒介 | 所在地 | 石垣市平得 地図 |
| 建ぺい率 / 容積率 | 60% / 200% | 交通 | 【バス停】平得: 徒歩約5分 |
| 価格備考 | - | ||
| 更新日 | 2026/03/18 | 公開期限 | 2026/03/31 |
この物件の設備・条件
| キッチン | 給湯 |
|---|---|
| バス・トイレ | バス/トイレ別 、 浴槽 |
| 室内設備 | 室内洗濯機置き場 、 出窓 |
| 立地・土地特徴 | 隣の建物との間隔が広い 、 南向き |
| 建物設備 | 上水道 、 ルーフバルコニー 、 庭付き 、 庭10坪以上 |
| その他条件 | 日当たり良し |
| リフォーム・リノベーション | 外装・その他(屋根・外壁など) |
| 設備備考 | 公共下水道未整備地区のため浄化槽 |
物件備考
| 備考 | 国道から25mまでは第一種住居(60% / 200%)25mより奥は第一種低層(50% / 100%) IT重要事項説明と電子契約対応 オンラインでの物件説明が可能 ■現況: 空き家 |
|---|
【掲載物件について】
・「うちなーらいふ」は、より正確な情報の提供を心がけておりますが、物件情報に誤りがある場合は、ご連絡をお願い致します。
・ご報告いただいた内容につきましては、掲載提供元である不動産会社に直接送信させていただきます。情報が不足している場合や、事実確認ができない場合などは対応できない場合がございます。
・本フォームは物件情報の誤りに関する報告専用です。賃貸・売買に関するお問い合わせには対応しておりませんので、あらかじめご了承ください。
こちらをクリックして物件の間違いを報告する。





































