近隣商業施設多数の好立地!【住宅診断済】状態良好!室内未リフォームでの先行販売開始いたします!リフォーム提案見積有★駐車場造成・外壁塗装・防水完了しました★リフォーム費用込で3,000万円のお手頃物件!
売買一戸建て名護市大南1丁目 3LDK
価格 2,391万円
物件情報
| 価格 | 2,391万円 | 階数 | 2階建て | 
|---|---|---|---|
| 間取り | 3LDK | ||
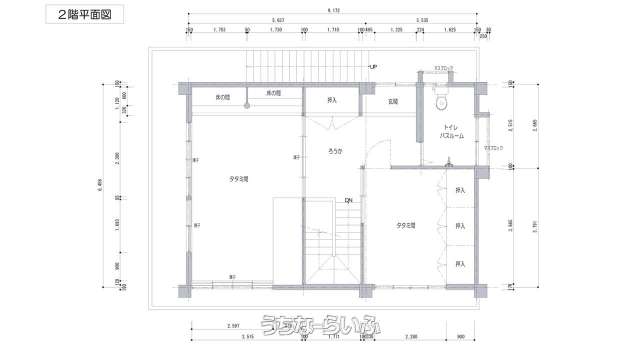
| 建物面積 | 118.02m² / 35.7坪 | 土地面積 | 100.81m² / 30.49坪 | 
| 私道負担 | 無し | 築年月 | 1980年11月(築45年) | 
| 駐車場 | 2台 並列 | 地目 | 宅地 | 
| 引き渡し | 相談 | 接道方向 / 道路幅員 | 南5.5m | 
| 土地権利 | 所有 | 都市計画 | 非線引 | 
| 用途地域 | 近商 | 建物構造 | RCB(鉄筋コンクリートブロック造) | 
| 取引態様 | 売主 | 所在地 | 名護市大南1丁目 | 
| 建ぺい率 / 容積率 | 80% / 200% | 交通 | 【バス停】北部合同庁舎前: 徒歩約2分 | 
| 価格備考 | - | ||
| 更新日 | 2025/11/04 | 公開期限 | 2025/11/17 | 
この物件の設備・条件
| キッチン | 給湯 、 ガスコンロ | 
|---|---|
| バス・トイレ | バス/トイレ別 、 浴槽 、 トイレ2ヶ所 | 
| 建物設備 | 上水道 、 下水道 、 プロパンガス | 
| リフォーム・リノベーション | 外装・その他(屋根・外壁など) | 
物件備考
| 備考 | ■現況: 空き家  | 
|---|
【うちなーらいふ】は、より正確な情報の提供を心がけておりますが、物件情報に誤りがある場合は、ご連絡をお願い致します。
ご報告いただいた内容につきましては、掲載提供元である不動産会社に直接送信させていただきます。情報が不足している場合や、事実確認ができない場合などは対応できない場合がございます。
間違いを報告する





























