残り1棟!早い者勝ち!壁式コンクリート造新築★床材はこだわりの無垢材●海を眺めながらゆったりBBQ等おすすめです!専属のファイナンシャルプランナーによるプランニングと住宅ローンのお手伝いで安心して購入いただけます。是非お問合せ下さい!
物件情報
| 価格 | 2,890万円 | 階数 | 1階建て |
|---|---|---|---|
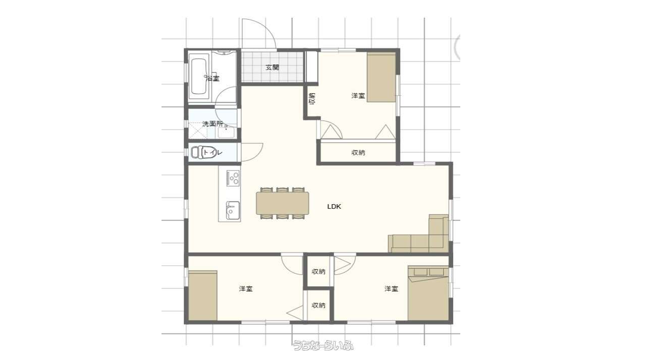
| 間取り | 3LDK ( 洋6 洋6 洋6 LDK19) | ||
| 建物面積 | 84.88m² / 25.67坪 | 土地面積 | 179m² / 54.14坪 |
| 私道負担 | 無し | 築年月 | 2025年01月(新築) |
| 駐車場 | 3台 並列 | 地目 | 宅地 |
| 引き渡し | 即日 | 接道方向 / 道路幅員 | 北東4m |
| 土地権利 | 所有 | 都市計画 | 非線引 |
| 用途地域 | 第一種中高層 | 建物構造 | RC(鉄筋コンクリート造) |
| 取引態様 | 専属専任媒介 | 所在地 | うるま市勝連平安名 地図 |
| 建ぺい率 / 容積率 | 60% / 200% | 交通 | 【バス停】平安名(へんな): 徒歩約6分 |
| 価格備考 | - | ||
| 更新日 | 2025/11/04 | 公開期限 | 2025/11/17 |
この物件の設備・条件
| キッチン | 給湯 、 ガスコンロ 、 対面式キッチン(カウンターキッチン) 、 食器洗乾燥機 |
|---|---|
| バス・トイレ | バス/トイレ別 、 ユニットバス 、 浴室乾燥機 |
| 家具・家電 | 乾燥機 |
| セキュリティ | TVホン(TVモニタ付インターホン) |
| 室内設備 | 室内洗濯機置き場 |
| 立地・土地特徴 | 整形地 |
| 建物設備 | 上水道 、 下水道 、 EV車充電設備 、 24時間換気システム 、 プロパンガス 、 オール洋間 、 庭付き |
| 評価・証明書 | 完了検査済証 |
| その他条件 | 海が見える 、 日当たり良し 、 眺望良し 、 静かな場所 |
物件備考
| 備考 | ■現況: 完成済 |
|---|
【うちなーらいふ】は、より正確な情報の提供を心がけておりますが、物件情報に誤りがある場合は、ご連絡をお願い致します。
ご報告いただいた内容につきましては、掲載提供元である不動産会社に直接送信させていただきます。情報が不足している場合や、事実確認ができない場合などは対応できない場合がございます。
間違いを報告する



































