\\価格改定//平良西里の市街地にある店舗付き戸建て物件です★コンビニやジム、小学校・中学校・高校が徒歩圏内にある便利な場所です★一階は事務所仕様となっており、二階は3LDKの広々とした住居スペースとなっています。駐車場も敷地内にあり、来客時にも困りません♬
内見ご希望の方は、お気軽にご相談ください。宮古島の不動産売買は、センチュリー21宮古不動産にお任せください!
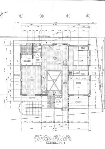
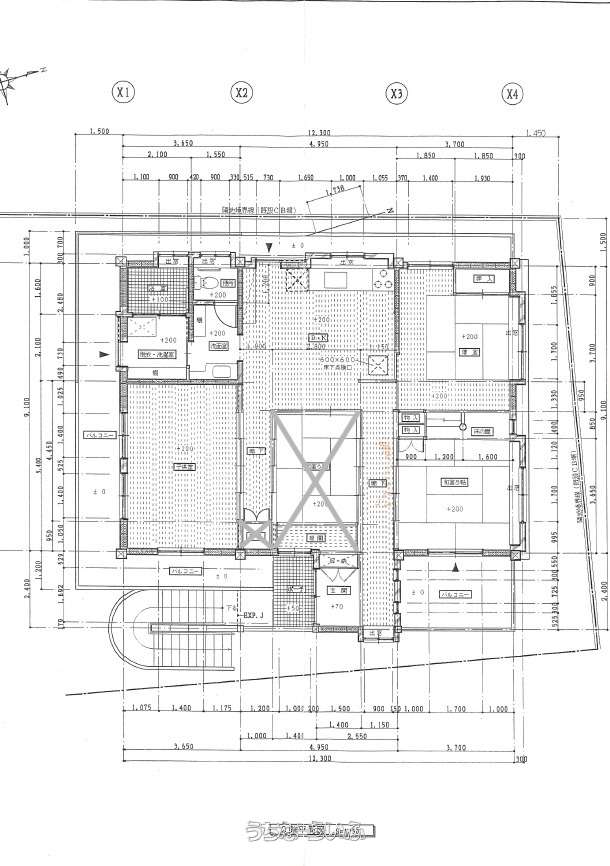
売買一戸建て宮古島市平良字西里 3LDK
価格 7,800万円
物件情報
| 価格 | 7,800万円 | 階数 | 2階建て |
|---|---|---|---|
| 間取り | 3LDK | ||
| 建物面積 | 224.27m² / 67.84坪 | 土地面積 | 266.48m² / 80.61坪 |
| 私道負担 | - | 築年月 | 2001年04月(築24年) |
| 駐車場 | 1台 •2台目 並列 | 地目 | 宅地 |
| 引き渡し | 相談 (2026年1月以降) | 接道方向 / 道路幅員 | 東、 南西10m |
| 土地権利 | 所有 | 都市計画 | 非線引 |
| 用途地域 | 第一種低層 | 建物構造 | RCB(鉄筋コンクリートブロック造) |
| 取引態様 | 仲介 | 所在地 | 宮古島市平良字西里 地図 |
| 建ぺい率 / 容積率 | 50% / 100% | 交通 | 【バス停】協栄車庫: 徒歩約3分 |
| 価格備考 | - | ||
| 更新日 | 2026/03/18 | 公開期限 | 2026/03/31 |
この物件の設備・条件
| キッチン | 給湯 、 ガスコンロ 、 コンロ三口以上 、 システムキッチン 、 食器洗乾燥機 |
|---|---|
| バス・トイレ | バス/トイレ別 、 独立洗面所 、 トイレ2ヶ所 、 タンクレストイレ 、 温水洗浄便座 |
| 室内設備 | 室内洗濯機置き場 |
| 立地・土地特徴 | 角地 、 南道路 、 南向き |
| 建物設備 | 上水道 、 プロパンガス |
| 駐車場 | 駐輪場 |
| その他条件 | 日当たり良し |
物件備考
| 備考 | ※現況渡し ※景観条例:市街地景観ゾーン b.住宅地景観(無) ※一階事務所は2月末で退去予定です ■現況: 空き家 |
|---|
【掲載物件について】
・「うちなーらいふ」は、より正確な情報の提供を心がけておりますが、物件情報に誤りがある場合は、ご連絡をお願い致します。
・ご報告いただいた内容につきましては、掲載提供元である不動産会社に直接送信させていただきます。情報が不足している場合や、事実確認ができない場合などは対応できない場合がございます。
・本フォームは物件情報の誤りに関する報告専用です。賃貸・売買に関するお問い合わせには対応しておりませんので、あらかじめご了承ください。
こちらをクリックして物件の間違いを報告する。センチュリー21 宮古不動産
| 住所 | 沖縄県宮古島市平良字西里 826-3 地図 |
|---|---|
| 営業時間 | 平日 10:00〜18:00 |
| 定休日 | 土・日・祝日(土日祝は事前にご予約頂ければ対応可能です。) |
| 免許 | 沖縄県知事免許 (1)第5798号 |



































