新築平屋RC住宅!
子育て世帯に。うるま市立あげな小学校・あげな中学校校区。スーパーや飲食店が多い地域で便利です。沖縄自動車道、沖縄北ICから車で約10分、那覇空港からは車で約50分。
売買一戸建てうるま市安慶名3丁目 3LDK
価格 6,400万円
物件情報
| 価格 | 6,400万円 | 階数 | 1階建て |
|---|---|---|---|
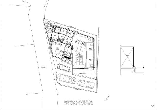
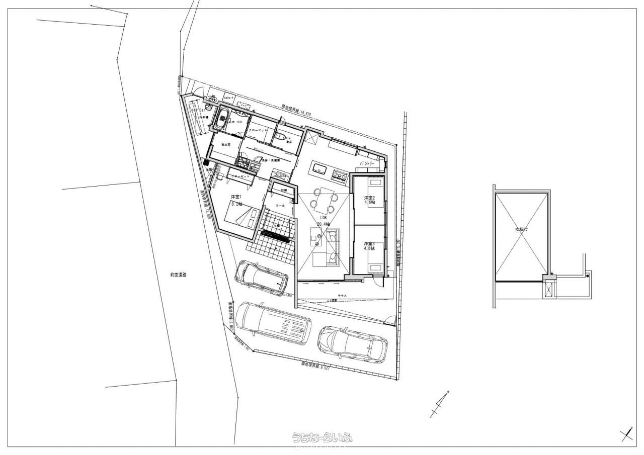
| 間取り | 3LDK ( 洋4.6 洋4.6 洋8.2 LDK20.4 ※シューズ収納とは別で玄関収納。オープンのパントリー。大容量のクローゼット。LDKに面した2部屋は、可動間仕切り戸で、間取り自由自在。) | ||
| 建物面積 | 111.43m² / 33.7坪 | 土地面積 | 203.26m² / 61.48坪 |
| 私道負担 | - | 築年月 | 2026年11月(新築) |
| 駐車場 | 2台 並列 •3台目 縦列 | 地目 | 宅地 |
| 引き渡し | 指定有 | 接道方向 / 道路幅員 | 南西4.8m |
| 土地権利 | 所有 | 都市計画 | - |
| 用途地域 | 無指定 | 建物構造 | RC(鉄筋コンクリート造) |
| 取引態様 | 専属専任媒介 | 所在地 | うるま市安慶名3丁目 |
| 建ぺい率 / 容積率 | 60% / 200% | 交通 | - |
| 価格備考 | - | ||
| 更新日 | 2026/01/08 | 公開期限 | 2026/01/21 |
この物件の設備・条件
| キッチン | 省エネ給湯器 、 コンロ三口以上 、 対面式キッチン(カウンターキッチン) |
|---|---|
| バス・トイレ | バス/トイレ別 、 独立洗面所 、 浴室乾燥機 、 浴室暖房 、 タンクレストイレ |
| セキュリティ | TVホン(TVモニタ付インターホン) |
| 室内設備 | 室内洗濯機置き場 |
| 収納 | ウォークインクローゼット 、 シューズボックス |
| 立地・土地特徴 | 平坦地 |
| 建物設備 | 上水道 、 EV車充電設備 、 オール電化 、 オール洋間 |
| 構造 | デザイナーズ |
| 評価・証明書 | 設計住宅性能評価書 、 完了検査済証 |
| 瑕疵保証あり | 瑕疵保険(国交省指定法人)による保証 |
| その他条件 | 静かな場所 |
物件備考
| 備考 | 新築平屋RC住宅! 子育て世帯に。うるま市立あげな小学校・あげな中学校校区。スーパーや飲食店が多い地域で便利です。沖縄自動車道、沖縄北ICから車で約10分、那覇空港からは車で約50分。 ■現況: 建築中 ■建築確認番号: 沖確R07200130号 |
|---|
【うちなーらいふ】は、より正確な情報の提供を心がけておりますが、物件情報に誤りがある場合は、ご連絡をお願い致します。
ご報告いただいた内容につきましては、掲載提供元である不動産会社に直接送信させていただきます。情報が不足している場合や、事実確認ができない場合などは対応できない場合がございます。
間違いを報告する













