新築 RC造2階 住宅ローンご案内中 【資産割れリスクの少ない建売】
内覧連絡先090-5740-8564
物件情報
| 価格 | 3,830万円 | 階数 | 2階建て |
|---|---|---|---|
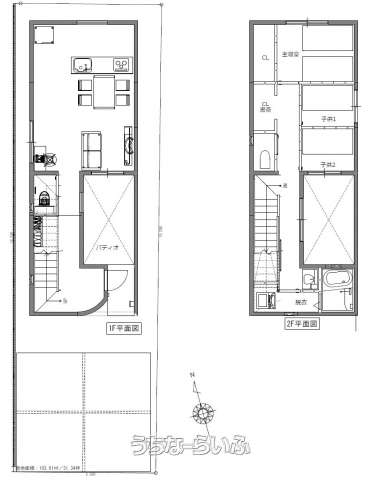
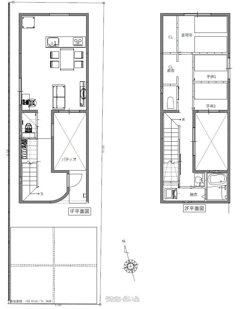
| 間取り | 3LDK ( 洋2.3 洋2.3 洋5.8 LDK14.5 ※プライバシー充分なパティオがあります。) | ||
| 建物面積 | 74.8m² / 22.63坪 | 土地面積 | 103.61m² / 31.34坪 |
| 私道負担 | 無し | 築年月 | 2025年07月(新築) |
| 駐車場 | 2台 並列 | 地目 | 宅地 |
| 引き渡し | 即日 | 接道方向 / 道路幅員 | 南5.5m |
| 土地権利 | 所有 | 都市計画 | 市街化区域 |
| 用途地域 | 第一種中高層 | 建物構造 | RC(鉄筋コンクリート造) |
| 取引態様 | 売主 | 所在地 | うるま市喜仲2丁目 地図 |
| 建ぺい率 / 容積率 | 60% / 200% | 交通 | - |
| 価格備考 | - | ||
| 更新日 | 2026/05/07 | 公開期限 | 2026/05/20 |
この物件の設備・条件
| キッチン | 給湯 、 IHコンロ 、 対面式キッチン(カウンターキッチン) 、 システムキッチン 、 食器洗乾燥機 |
|---|---|
| バス・トイレ | バス/トイレ別 、 ユニットバス 、 浴槽 、 独立洗面所 、 トイレ2ヶ所 |
| 家具・家電 | 乾燥機 |
| セキュリティ | インターフォン |
| 室内設備 | 室内洗濯機置き場 |
| 収納 | 階段下収納 |
| 立地・土地特徴 | 南道路 、 整形地 、 平坦地 、 南向き |
| 建物設備 | 上水道 、 下水道 、 EV車充電設備 、 複層ガラス 、 24時間換気システム 、 プロパンガス 、 オール洋間 、 庭付き |
| 評価・証明書 | 設計住宅性能評価書 、 完了検査済証 |
| 瑕疵保証あり | 瑕疵保険(国交省指定法人)による保証 |
| 駐車場 | 駐輪場 |
| その他条件 | 日当たり良し 、 静かな場所 |
物件備考
| 備考 | ■現況: 完成済 |
|---|
【掲載物件について】
・「うちなーらいふ」は、より正確な情報の提供を心がけておりますが、物件情報に誤りがある場合は、ご連絡をお願い致します。
・ご報告いただいた内容につきましては、掲載提供元である不動産会社に直接送信させていただきます。情報が不足している場合や、事実確認ができない場合などは対応できない場合がございます。
・本フォームは物件情報の誤りに関する報告専用です。賃貸・売買に関するお問い合わせには対応しておりませんので、あらかじめご了承ください。
こちらをクリックして物件の間違いを報告する。































