生活便利な立地で近隣商業施設多数♪こだわりある建材使用の大型二世帯住宅です(^^)/
物件情報
| 価格 | 1億8,000万円 | 階数 | 3階建て |
|---|---|---|---|
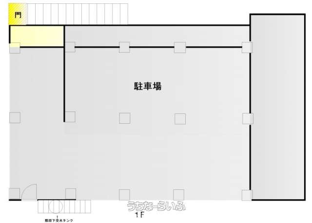
| 間取り | 8LDK ( ※【1階車庫(駐車場)】・【2階:6LDK(LDK35帖・洋室12帖/10帖・和室12帖/12帖/6帖/6帖)】・【3階:2LDK(LDK20帖・洋20帖/15帖)】) | ||
| 建物面積 | 769.77m² / 232.85坪 | 土地面積 | 1101.25m² / 333.12坪 |
| 私道負担 | 無し | 築年月 | 1993年11月(築32年) |
| 駐車場 | 20台 縦列 並列 屋内 •21台目 | 地目 | 宅地 |
| 引き渡し | 相談 | 接道方向 / 道路幅員 | 東4.5m |
| 土地権利 | 所有 | 都市計画 | 市街化区域 |
| 用途地域 | 第一種低層 | 建物構造 | RC(鉄筋コンクリート造) |
| 取引態様 | 仲介 | 所在地 | うるま市江洲 地図 |
| 建ぺい率 / 容積率 | 50% / 100% | 交通 | 【モノレール】てだこ浦西駅: バス乗車37分/徒歩約14分 【バス停】第一江洲: 徒歩約3分 |
| 価格備考 | - | ||
| 更新日 | 2025/10/31 | 公開期限 | 2025/11/13 |
この物件の設備・条件
| キッチン | 給湯 、 コンロ三口以上 、 システムキッチン |
|---|---|
| バス・トイレ | バス/トイレ別 、 浴槽 、 シャンプードレッサー 、 独立洗面所 、 浴室1坪以上 |
| セキュリティ | インターフォン |
| 室内設備 | 室内洗濯機置き場 |
| 立地・土地特徴 | 整形地 、 隣の建物との間隔が広い 、 南向き |
| 建物設備 | 上水道 、 庭10坪以上 、 ウッドデッキ |
| 構造 | 二世帯住宅 、 全居室6畳以上 |
| 駐車場 | 駐輪場 |
| その他条件 | 日当たり良し |
物件備考
| 備考 | ●オーナー様居住中の為、内見の際は要予約。 ●定休日:土日・祝祭日 ※ 定休日にお問合せ頂いた場合は返信が営業日以降となる場合が御座います。 ※ 即日内見のお問合せも受け付けておりますが、担当スタッフの時間調整が必要な為、余裕をもって連絡頂けると助かります(担当スタッフの予定次第では対応いたしかねますのでご了承下さいませ) (お問合せ先) 合同会社さら不動産 : TEL 098-974-6355 定休日のお問合せ先 : TEL 080-7697-2464 不動産売買・仲介・賃貸管理・入居斡旋・任意売却など、不動産に関わるご相談随時受付ております。 秘密厳守で土地・建物・収益物件等の無料査定も実施中ですので、先ずはお気軽にお問合せ下さいませ(*^_^*) ■現況: 所有者居住中 |
|---|
【うちなーらいふ】は、より正確な情報の提供を心がけておりますが、物件情報に誤りがある場合は、ご連絡をお願い致します。
ご報告いただいた内容につきましては、掲載提供元である不動産会社に直接送信させていただきます。情報が不足している場合や、事実確認ができない場合などは対応できない場合がございます。
間違いを報告する合同会社さら不動産
| 住所 | 沖縄県うるま市兼箇段 970-9 地図 |
|---|---|
| 営業時間 | 月〜金 09:00〜17:30 土日・祝祭日は事前予約のお客様のみ対応しております(当日の事前予約も可能です)。 |
| 定休日 | 土日・祝祭日・年末年始 |
| 免許 | 沖縄県知事(1)第5567号 |





































