物件情報
| 価格 | 1,700万円 | 階数 | 1階建て |
|---|---|---|---|
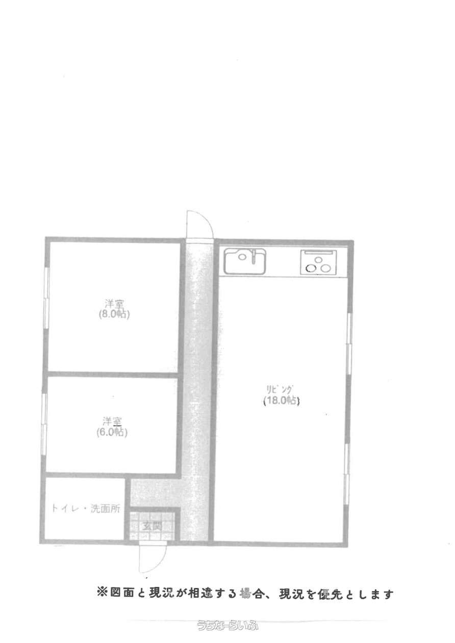
| 間取り | 2LDK ( 洋8 洋6 LDK18 ※・図面等現況が相違する場合、現況を優先とします。) | ||
| 建物面積 | 66.3m² / 20.05坪 | 土地面積 | 331m² / 100.12坪 |
| 私道負担 | 無し | 築年月 | 1972年(築54年) |
| 駐車場 | 台 | 地目 | - |
| 引き渡し | - | 接道方向 / 道路幅員 | 北西5m |
| 土地権利 | 所有 | 都市計画 | - |
| 用途地域 | 第二種中高層 | 建物構造 | RC(鉄筋コンクリート造) |
| 取引態様 | 専任媒介 | 所在地 | うるま市与那城屋慶名 |
| 建ぺい率 / 容積率 | 60% / 200% | 交通 | 【バス停】東屋慶名: 徒歩約2分 |
| 価格備考 | - | ||
| 更新日 | 2026/03/16 | 公開期限 | 2026/03/29 |
この物件の設備・条件
| キッチン | 給湯 、 システムキッチン |
|---|---|
| バス・トイレ | ユニットバス |
| 家具・家電 | 冷房 、 暖房 |
| 室内設備 | 室内洗濯機置き場 |
| 通信設備 | BSアンテナ 、 CSアンテナ |
| 立地・土地特徴 | 平坦地 |
| 建物設備 | 上水道 、 下水道 、 プロパンガス |
| 駐車場 | 駐輪場 |
物件備考
| 備考 | ・建物は未登記。契約後に売主が表示登記する。 ■現況: 所有者居住中 |
|---|
【掲載物件について】
・「うちなーらいふ」は、より正確な情報の提供を心がけておりますが、物件情報に誤りがある場合は、ご連絡をお願い致します。
・ご報告いただいた内容につきましては、掲載提供元である不動産会社に直接送信させていただきます。情報が不足している場合や、事実確認ができない場合などは対応できない場合がございます。
・本フォームは物件情報の誤りに関する報告専用です。賃貸・売買に関するお問い合わせには対応しておりませんので、あらかじめご了承ください。
こちらをクリックして物件の間違いを報告する。








