★★外観写真はR7年12月7日に撮影(随時更新)★★
★鏡原山中エリアの新築物件のご紹介です★現在建築中。年内完成予定となります★
★別棟E棟もご紹介可能です★鏡原小・中学校区★★詳細はお問い合わせくださいませ★
★★第R06確認建築沖縄県00035号★★
物件情報
| 価格 | 4,000万円 | 階数 | 1階建て |
|---|---|---|---|
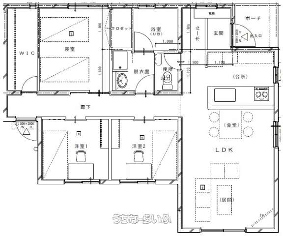
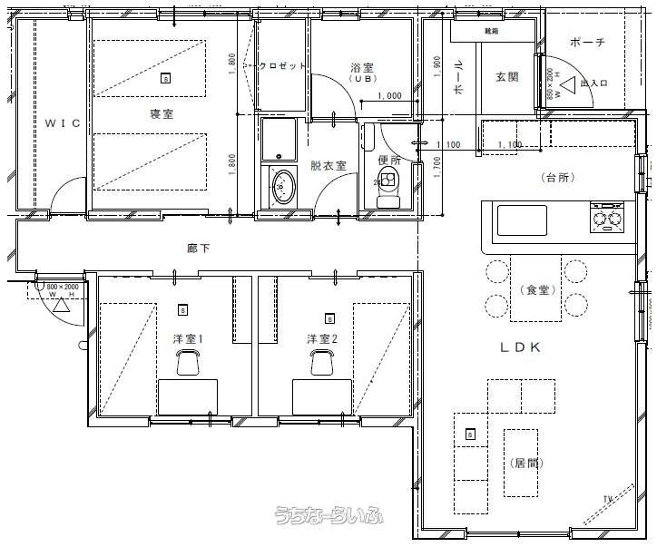
| 間取り | 3LDK | ||
| 建物面積 | 83.11m² / 25.14坪 | 土地面積 | 180m² / 54.45坪 |
| 私道負担 | 無し | 築年月 | - |
| 駐車場 | 2台 並列 | 地目 | 畑 |
| 引き渡し | 相談 | 接道方向 / 道路幅員 | 北西6.5m |
| 土地権利 | 所有 | 都市計画 | 非線引 |
| 用途地域 | 無指定 | 建物構造 | RC(鉄筋コンクリート造) |
| 取引態様 | 仲介 | 所在地 | 宮古島市平良字下里 地図 |
| 建ぺい率 / 容積率 | 60% / 200% | 交通 | - |
| 価格備考 | - | ||
| 更新日 | 2025/12/19 | 公開期限 | 2026/01/01 |
この物件の設備・条件
| キッチン | 給湯 、 ガスコンロ 、 システムキッチン |
|---|---|
| バス・トイレ | バス/トイレ別 、 浴槽 、 独立洗面所 |
| セキュリティ | インターフォン |
| 室内設備 | 室内洗濯機置き場 |
| 立地・土地特徴 | 角地 |
| 建物設備 | 上水道 |
物件備考
| 備考 | ※E棟:第R06確認建築沖縄県00034号 販売価格:4,100万円 ■現況: 建築中 ■建築確認番号: 第R06確認建築沖縄県00035号 |
|---|
【うちなーらいふ】は、より正確な情報の提供を心がけておりますが、物件情報に誤りがある場合は、ご連絡をお願い致します。
ご報告いただいた内容につきましては、掲載提供元である不動産会社に直接送信させていただきます。情報が不足している場合や、事実確認ができない場合などは対応できない場合がございます。
間違いを報告する

























