【価格改定しました】住宅+店舗事務所用地付き★広々敷地の戸建★宮古空港から車で約7分★オール洋間 3LDK 収納たっぷり★内覧受付中!
売買一戸建て宮古島市平良字東仲宗根添 3LDK
価格 4,980万円
物件情報
| 価格 | 4,980万円 | 階数 | 1階建て |
|---|---|---|---|
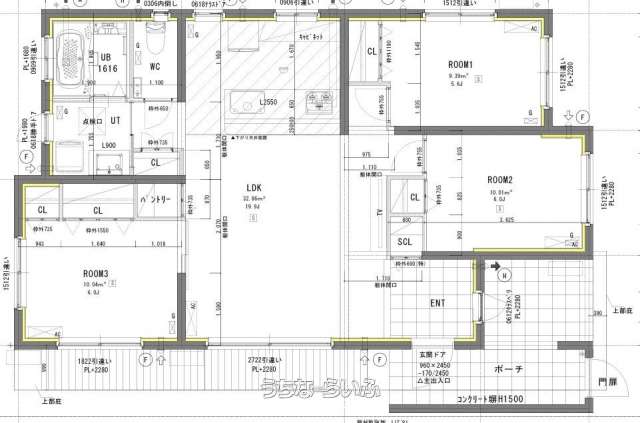
| 間取り | 3LDK ( 洋6 洋6 洋5.6 LDK19.9) | ||
| 建物面積 | 89.97m² / 27.21坪 | 土地面積 | 535.8m² / 162.07坪 |
| 私道負担 | 無し | 築年月 | 2024年07月(築1年) |
| 駐車場 | 2台 並列 | 地目 | 宅地 |
| 引き渡し | 相談 | 接道方向 / 道路幅員 | 北5.05m、 東14.52m |
| 土地権利 | 所有 | 都市計画 | 非線引 |
| 用途地域 | 無指定 | 建物構造 | RC(鉄筋コンクリート造) |
| 取引態様 | 仲介 | 所在地 | 宮古島市平良字東仲宗根添 地図 |
| 建ぺい率 / 容積率 | 60% / 200% | 交通 | 【バス停】名底バス停: 徒歩約14分 |
| 価格備考 | - | ||
| 更新日 | 2026/05/28 | 公開期限 | 2026/06/10 |
この物件の設備・条件
| キッチン | ガスコンロ 、 コンロ三口以上 、 対面式キッチン(カウンターキッチン) 、 パントリー(食器・食品の収納庫) |
|---|---|
| バス・トイレ | バス/トイレ別 、 ユニットバス 、 浴槽 、 独立洗面所 、 浴室1坪以上 、 温水洗浄便座 |
| セキュリティ | TVホン(TVモニタ付インターホン) |
| 室内設備 | 室内洗濯機置き場 |
| 収納 | シューズインクローク 、 全居室収納 |
| 立地・土地特徴 | 角地 、 平坦地 |
| 建物設備 | 上水道 、 プロパンガス 、 オール洋間 |
| その他条件 | 静かな場所 |
物件備考
| 備考 | ■現況: 完成済 |
|---|
【掲載物件について】
・「うちなーらいふ」は、より正確な情報の提供を心がけておりますが、物件情報に誤りがある場合は、ご連絡をお願い致します。
・ご報告いただいた内容につきましては、掲載提供元である不動産会社に直接送信させていただきます。情報が不足している場合や、事実確認ができない場合などは対応できない場合がございます。
・本フォームは物件情報の誤りに関する報告専用です。賃貸・売買に関するお問い合わせには対応しておりませんので、あらかじめご了承ください。
こちらをクリックして物件の間違いを報告する。














