🏡 【リフォーム予定】1階に和室・洋室・LDK17帖|駐車2台OKの4LDK(RCB造)
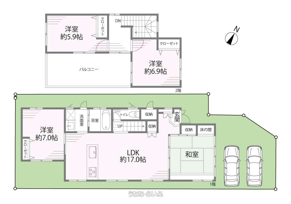
1階に和室+洋室+LDK約17帖を配置した、生活しやすい間取り。来客時もプライベート空間を保ちやすく、将来の同居や在宅ワークにも対応可能です。
2階は2居室+バルコニーで全室収納付き。並列2台の駐車も可能で、骨組みしっかりのRC造。事前相談で業務時間外の案内・面談も承ります。
360°VR画像
パノラマ画像
物件情報
| 価格 | 3,998万円 | 階数 | 2階建て |
|---|---|---|---|
| 間取り | 4LDK ( 洋7 洋6.9 洋5.9 和6 LDK17 ※広々バルコニー、ちょっとした菜園スペース有。全室収納有) | ||
| 建物面積 | 110.87m² / 33.53坪 | 土地面積 | 155.13m² / 46.92坪 |
| 私道負担 | 無し | 築年月 | 2003年01月(築22年) |
| 駐車場 | 2台 並列 ※車種要確認 | 地目 | 宅地 |
| 引き渡し | 相談 | 接道方向 / 道路幅員 | 北5m |
| 土地権利 | 所有 | 都市計画 | 市街化区域 |
| 用途地域 | 第一種中高層 | 建物構造 | RCB(鉄筋コンクリートブロック造) |
| 取引態様 | 仲介 | 所在地 | 宜野湾市長田4丁目 地図 |
| 建ぺい率 / 容積率 | 60% / 200% | 交通 | 【モノレール】てだこ浦西駅: 徒歩約45分 【バス停】志真志: 徒歩約5分 |
| 価格備考 | 登記費用等が別途かかります。詳細はお気軽にお問い合わせください。 | ||
| 更新日 | 2025/10/30 | 公開期限 | 2025/11/12 |
この物件の設備・条件
| キッチン | 給湯 、 ガスコンロ 、 コンロ三口以上 、 対面式キッチン(カウンターキッチン) 、 システムキッチン 、 食器洗乾燥機 |
|---|---|
| バス・トイレ | バス/トイレ別 、 浴槽 、 浴室1坪以上 |
| 室内設備 | 室内洗濯機置き場 |
| 収納 | シューズボックス |
| 立地・土地特徴 | 平坦地 、 南向き |
| 建物設備 | 上水道 、 下水道 、 プロパンガス 、 南面バルコニー 、 庭付き |
| 構造 | 全室2面採光 |
| その他条件 | 日当たり良し 、 静かな場所 |
物件備考
| 備考 | 弊社仲介でご購入いただくと、24時間365日対応の設備保証サービスを特典としてご利用いただけます。 キッチン・バス・洗面・トイレ・エアコンなど主要設備が対象です。 故障時は専用コールセンターが迅速に対応し、ご自宅まで出張修理いたします。 中古住宅でも「安心のアフターサポート」がついています。 売主様にて壁紙取替等予定♪ 12月中旬完了予定。 住まいは人生の舞台。安心して次の一歩を踏み出せるように、私たちが伴走します。 ・1階が充実:LDK約17帖、7帖洋室、6帖和室を備え、生活のほとんどが1階で完結します。 ・和室のある暮らし:客間・子どもの遊び場・寝室など多目的に利用可能です。 ・2階は2部屋+バルコニー:主寝室や子ども部屋に最適。全室にクローゼット付きです。 ・並列駐車2台:入替え不要で朝の出発がスムーズ。自転車やベビーカー置場も確保しやすいです。 ・水回りが一直線(キッチン〜洗面〜浴室近接):家事の移動距離が短く、時短に貢献します。 ・玄関収納+シューズボックス:お出かけグッズが片づきやすいです。 ・対面キッチン(カウンター):料理しながら家族とコミュニケーションとれます。 ・RC造×2003年築:骨組みしっかり。間取りを活かしたリフォームに向く躯体です。 ――――――――――――――――――――― 【株式会社ミカタ不動産について】 沖縄県内でマンション・戸建・土地の仲介・買取・売買を行っています。 代表も社員も不動産歴10年以上のベテラン。 「お客様の味方となり、三方良しの不動産取引を行います」を理念に、日々の業務に取り組んでいます。 ――――――――――――――――――――― 【サポート内容】 ◆住宅ローンの不安を抱えていませんか? ・いくらまで借りられる? ・どの銀行を選べばいい? こうした疑問に丁寧にお答えし、資金計画を立ててご一緒に審査準備をいたします。 ◆現地案内・面談について 事前相談で業務時間外の対応も可能です。 安心してお気軽にご相談ください。 ◆オンライン対応可能 面談・物件案内・契約までオンラインで行えます。 遠方やお忙しい方でも安心してご相談いただけます。 ――――――――――――――――――――― 【会社情報・SNS】 ▶ 代表の経歴はこちら https://mikata-okinawa.com/daihyouaisatu ▶ LINE問合せ https://works.do/R/ti/p/mikataokinawa https://www.instagram.com/mikataokinawa ――――――――――――――――――――― 📩 info@mikata-okinawa.com 📱 オンラインでの面談・契約も対応しています 私たちは不動産のパートナーとして、安心して次の一歩を踏み出せるお手伝いをいたします。 ■現況: 空き家 |
|---|
【うちなーらいふ】は、より正確な情報の提供を心がけておりますが、物件情報に誤りがある場合は、ご連絡をお願い致します。
ご報告いただいた内容につきましては、掲載提供元である不動産会社に直接送信させていただきます。情報が不足している場合や、事実確認ができない場合などは対応できない場合がございます。
間違いを報告する株式会社ミカタ不動産
| 住所 | 沖縄県那覇市長田 2-12-17 地図 |
|---|---|
| 営業時間 | 09:00〜18:00 ※事前相談で業務時間外でも案内・相談のご対応可能です! |
| 定休日 | 無し |
| 免許 | 沖縄県知事免許(1)第5597号 |








































