🌸グラファーレルミオ南城市玉城糸数4期2棟🌸※備考に初期費用、住宅ローンシミュレーション有(概算)。✨ファミリー向き4LDkの駐車場3台✨玉城小学校・玉城中学校区域!周辺には、Aコープ玉城店・奥武島・ローソン船越小学校前店・ゴルフ場まで車で10分圏内!ファミリー向き新築住宅!
売買一戸建て南城市玉城字糸数 4LDK
価格 3,180万円〜3,280万円
物件情報
| 価格 | 3,180万円〜3,280万円 | 階数 | 2階建て |
|---|---|---|---|
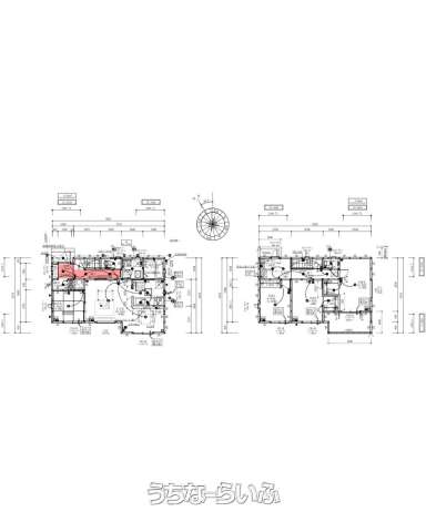
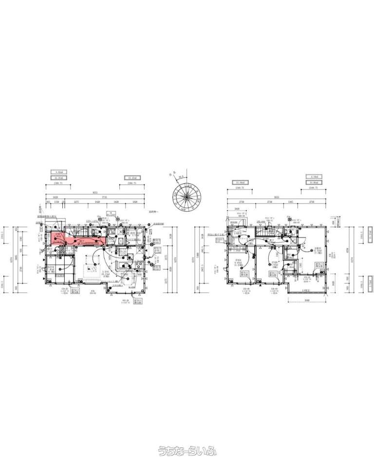
| 間取り | 4LDK ( 洋5.2 洋5.2 洋5.2 洋7.7 LDK16) | ||
| 建物面積 | 110.13m² / 33.31坪 | 土地面積 | 194.59m² / 58.86坪 |
| 私道負担 | 無し | 築年月 | 2026年(新築) |
| 駐車場 | 3台 並列 •4台目 | 地目 | 畑 |
| 引き渡し | 指定有 | 接道方向 / 道路幅員 | 北4m |
| 土地権利 | 所有 | 都市計画 | 市街化区域 |
| 用途地域 | 無指定 | 建物構造 | 木造 |
| 取引態様 | 専任媒介 | 所在地 | 南城市玉城字糸数 地図 |
| 建ぺい率 / 容積率 | 70% / 200% | 交通 | - |
| 価格備考 | - | ||
| 更新日 | 2025/10/31 | 公開期限 | 2025/11/13 |
この物件の設備・条件
| 立地・土地特徴 | 平坦地 |
|---|---|
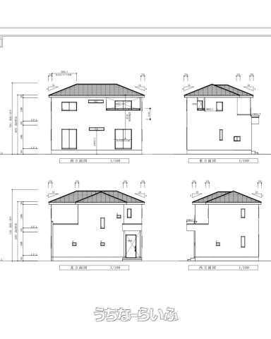
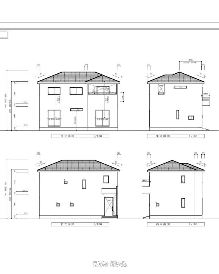
| 構造 | 長期優良住宅 |
物件備考
| 備考 | 1号棟 物件価格3,280万円 初期費用 仲介手数料1,148,400円 所有権移転登記費用30万円 印紙代1万円 合計34,258,400円 借入金額 3,400万円 金利1.5% 返済期間40年 月々返済94,238円~ ※シミュレーションはすべて概算となります。 物件詳細、ご不明な点がございましたらお気軽にお問合せ下さい♪ 【マシューズオフィス株式会社】TEL098‐800‐1566 ■現況: 建築中 ■建築確認番号: HAP-25-12044-1 |
|---|
【うちなーらいふ】は、より正確な情報の提供を心がけておりますが、物件情報に誤りがある場合は、ご連絡をお願い致します。
ご報告いただいた内容につきましては、掲載提供元である不動産会社に直接送信させていただきます。情報が不足している場合や、事実確認ができない場合などは対応できない場合がございます。
間違いを報告する































