那覇市寄宮の2世帯住宅! 玄関、水回り等設備も分かれています。広々とした駐車スペース 公園、スーパーマーケット、病院、小中学校が徒歩圏内にあり、生活環境が整っています。お気軽にご連絡ください。2階フローリング・水回り、リフォーム必須!!
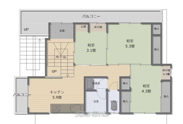
売買一戸建て那覇市寄宮2丁目 4DK
価格 3,480万円
物件情報
| 価格 | 3,480万円 | 階数 | 3階建て |
|---|---|---|---|
| 間取り | 4DK ( 洋5.3 洋4.3 洋2.6 洋3.5 ※2世帯住宅として使用可能。) | ||
| 建物面積 | 116.51m² / 35.24坪 | 土地面積 | 114.17m² / 34.53坪 |
| 私道負担 | 無し | 築年月 | 1991年09月(築34年) |
| 駐車場 | 3台 並列 | 地目 | 宅地 |
| 引き渡し | 相談 (2026年2月) | 接道方向 / 道路幅員 | 南西3.6m、 北西3.1m |
| 土地権利 | 所有 | 都市計画 | 市街化区域 |
| 用途地域 | 第一種中高層 | 建物構造 | RC(鉄筋コンクリート造) |
| 取引態様 | 専任媒介 | 所在地 | 那覇市寄宮2丁目 |
| 建ぺい率 / 容積率 | 60% / 200% | 交通 | 【モノレール】安里駅: 徒歩約16分 【バス停】県立看護大学前: 徒歩約5分 |
| 価格備考 | - | ||
| 更新日 | 2026/03/16 | 公開期限 | 2026/03/29 |
この物件の設備・条件
| キッチン | 給湯 |
|---|---|
| バス・トイレ | バス/トイレ別 、 独立洗面所 、 トイレ2ヶ所 |
| 立地・土地特徴 | 角地 、 南道路 、 整形地 、 南向き |
| 建物設備 | 上水道 、 下水道 |
| 構造 | 二世帯住宅 |
| その他条件 | 静かな場所 |
| 設備備考 | 2階フローリングはリフォームが必要になります。 |
物件備考
| 備考 | 那覇市寄宮2丁目の2世帯住宅。下駄ばき駐車場が魅力の物件です。スーパーマーケット、病院、小中学校、大きい公園なども近く、生活がしやすい環境となっております。お気軽にご連絡ください。 ■現況: 所有者居住中 |
|---|
【掲載物件について】
・「うちなーらいふ」は、より正確な情報の提供を心がけておりますが、物件情報に誤りがある場合は、ご連絡をお願い致します。
・ご報告いただいた内容につきましては、掲載提供元である不動産会社に直接送信させていただきます。情報が不足している場合や、事実確認ができない場合などは対応できない場合がございます。
・本フォームは物件情報の誤りに関する報告専用です。賃貸・売買に関するお問い合わせには対応しておりませんので、あらかじめご了承ください。
こちらをクリックして物件の間違いを報告する。



































