沖縄県島尻郡八重瀬町高良に位置する、平成26年11月築の中古住宅のご紹介です。落ち着いた住環境の中に佇む、こだわりの詰まったデザイナーズ住宅。平家建てならではの暮らしやすさと開放感を兼ね備えた、魅力的な3LDKの住まいです。本物件はワンフロアで生活が完結する平家住宅のため、小さなお子様のいるご家庭からご年配の方まで、幅広い世代にとって暮らしやすい設計となっています。階段の昇り降りがないため日常生活の負担が少なく、将来を見据えた住まいとしても安心です。
売買一戸建て八重瀬町高良 3LDK
価格 3,180万円
物件情報
| 価格 | 3,180万円 | 階数 | 1階建て |
|---|---|---|---|
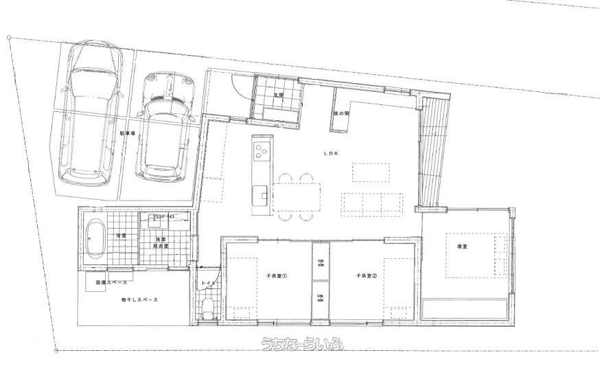
| 間取り | 3LDK ( 洋6.9 洋5.2 洋5.2 LDK18.7) | ||
| 建物面積 | 73.94m² / 22.36坪 | 土地面積 | 175m² / 52.93坪 |
| 私道負担 | 無し | 築年月 | 2014年11月(築11年) |
| 駐車場 | 3台 並列 | 地目 | 宅地 |
| 引き渡し | 相談 | 接道方向 / 道路幅員 | 北2.3m、 東2.6m、 南4.4m |
| 土地権利 | 所有 | 都市計画 | 市街化調整区域 |
| 用途地域 | 無指定 | 建物構造 | RC(鉄筋コンクリート造) |
| 取引態様 | 専任媒介 | 所在地 | 八重瀬町高良 地図 |
| 建ぺい率 / 容積率 | 60% / 200% | 交通 | 【バス停】高良: 徒歩約3分 |
| 価格備考 | - | ||
| 更新日 | 2026/03/10 | 公開期限 | 2026/03/23 |
この物件の設備・条件
| キッチン | IHコンロ 、 対面式キッチン(カウンターキッチン) 、 システムキッチン 、 食器洗乾燥機 |
|---|---|
| バス・トイレ | バス/トイレ別 、 浴槽 、 浴室乾燥機 |
| 室内設備 | 室内洗濯機置き場 |
| 立地・土地特徴 | 角地 、 南道路 、 整形地 |
| 建物設備 | 上水道 、 オール電化 、 オール洋間 |
| 構造 | デザイナーズ |
| 評価・証明書 | 完了検査済証 |
| 駐車場 | 駐輪場 |
| その他条件 | 静かな場所 |
物件備考
| 備考 | 建物は平成26年11月築と比較的新しく、室内外ともにスタイリッシュなデザインが魅力のデザイナーズハウス。細部までこだわり抜かれた設計により、機能性とデザイン性を両立しています。シンプルで洗練された外観は街並みにも美しく調和し、住む人の個性を感じさせる住まいとなっています。間取りは3LDK。リビング・ダイニングはゆとりある空間設計となっており、ご家族が自然と集まる心地よい空間です。大きな窓からは明るい光が差し込み、開放感のある室内環境を実現。キッチンからリビングやダイニングを見渡せる設計で、家族とのコミュニケーションを取りながら家事ができるのも魅力の一つです。また、本物件はオール電化住宅となっており、火を使わない安心感と光熱費管理のしやすさが特徴です。IHクッキングヒーターなどにより、快適で安全な生活環境を実現しています。敷地は3方道路に面しており、日当たりや風通しの良さも大きなポイントです。建物の周囲に開放感があり、圧迫感を感じにくい住環境となっています。車の出入りもしやすく、生活の利便性にも優れています。駐車スペースは3台分確保されており、ご家族で複数台お車をお持ちの方や、来客時にも安心です。沖縄では車移動が中心となるため、ゆとりある駐車スペースは大きな魅力となります。周辺は落ち着いた住宅環境が広がり、静かな暮らしを求める方にもおすすめの立地です。八重瀬町は自然も多く残りながら生活利便施設も整っており、子育て世帯にも人気のエリアとなっています。デザイン性・機能性・住環境の三拍子がそろった魅力的な平家のデザイナーズ住宅。開放感のある3方道路の立地と、ゆとりある駐車スペース、安心のオール電化など、快適な暮らしを実現する条件が整ったおすすめの物件です。ぜひ一度、現地にてこの住まいの魅力をご体感ください。お問い合わせをお待ちしております。 ■現況: 所有者居住中 |
|---|
【うちなーらいふ】は、より正確な情報の提供を心がけておりますが、物件情報に誤りがある場合は、ご連絡をお願い致します。
ご報告いただいた内容につきましては、掲載提供元である不動産会社に直接送信させていただきます。情報が不足している場合や、事実確認ができない場合などは対応できない場合がございます。
間違いを報告する









