【中城村添石】◎内覧予約受付中です◇洗練されたデザインのRC造3LDK◆吹抜けで明るく開放的なリビング◇お洒落な対面式キッチン◆多目的ルーム・WIC有◇1階・2階に広々テラス◆屋内駐車場2台***お気軽にお問い合わせください***
売買一戸建て中城村添石 3LDK
価格 6,500万円
物件情報
| 価格 | 6,500万円 | 階数 | 2階建て |
|---|---|---|---|
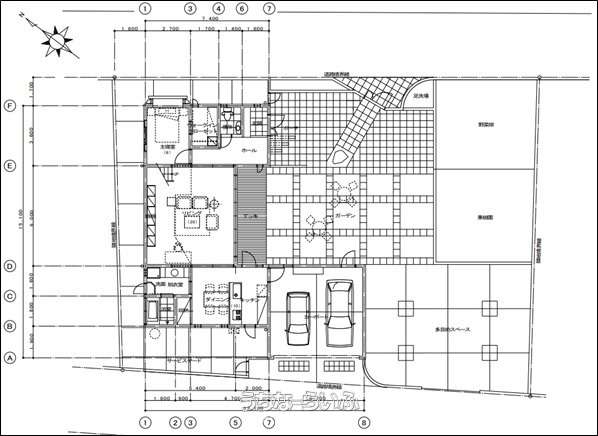
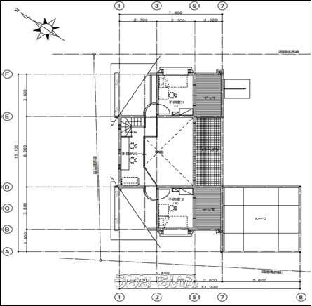
| 間取り | 3LDK ( 洋5.8 洋5.8 洋5.8 LDK29.8 ※WIC・多目的ルーム有り) | ||
| 建物面積 | 149.09m² / 45.1坪 | 土地面積 | 283.65m² / 85.8坪 |
| 私道負担 | - | 築年月 | 2003年07月(築22年) |
| 駐車場 | 2台 並列 屋内 | 地目 | 宅地 |
| 引き渡し | 相談 | 接道方向 / 道路幅員 | 北東、 南西 |
| 土地権利 | 所有 | 都市計画 | 市街化調整区域 |
| 用途地域 | 無指定 | 建物構造 | RC(鉄筋コンクリート造) |
| 取引態様 | 仲介 | 所在地 | 中城村添石 地図 |
| 建ぺい率 / 容積率 | 60% / 200% | 交通 | 【バス停】伊舎堂: 徒歩約4分 |
| 価格備考 | - | ||
| 更新日 | 2025/10/30 | 公開期限 | 2025/11/12 |
この物件の設備・条件
| キッチン | 給湯 、 対面式キッチン(カウンターキッチン) 、 システムキッチン |
|---|---|
| バス・トイレ | バス/トイレ別 、 浴槽 |
| 室内設備 | 室内洗濯機置き場 |
| 収納 | ウォークインクローゼット |
| 立地・土地特徴 | 平坦地 |
| 建物設備 | 上水道 、 プロパンガス 、 オール洋間 、 ウッドデッキ 、 吹抜 |
物件備考
| 備考 | ■3LDK(LDK29.8帖/洋室5.8帖×3 ※WIC・多目的ルーム有り) ■小中学校徒歩圏内 ■国道329号近く・北中城ICまで車で10分アクセス良好 **お気軽にお問い合わせください** ■現況: 所有者居住中 |
|---|
【うちなーらいふ】は、より正確な情報の提供を心がけておりますが、物件情報に誤りがある場合は、ご連絡をお願い致します。
ご報告いただいた内容につきましては、掲載提供元である不動産会社に直接送信させていただきます。情報が不足している場合や、事実確認ができない場合などは対応できない場合がございます。
間違いを報告する









