■北谷高校近く■眺望あり
売買一戸建て北谷町桑江
価格 1億3,000万円
物件情報
| 価格 | 1億3,000万円 | 階数 | 2階建て | 
|---|---|---|---|
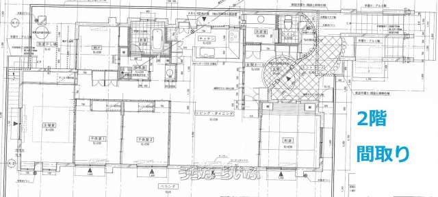
| 間取り | - | ||
| 建物面積 | 232.44m² / 70.31坪 | 土地面積 | 535.53m² / 162坪 | 
| 私道負担 | 無し | 築年月 | 2003年10月(築22年) | 
| 駐車場 | 4台無料 並列 | 地目 | 宅地 | 
| 引き渡し | 相談 | 接道方向 / 道路幅員 | - | 
| 土地権利 | 所有 | 都市計画 | 非線引 | 
| 用途地域 | 第一種低層 | 建物構造 | RCB(鉄筋コンクリートブロック造) | 
| 取引態様 | 専属専任媒介 | 所在地 | 北谷町桑江 地図 | 
| 建ぺい率 / 容積率 | 50% / 100% | 交通 | - | 
| 価格備考 | ■2世帯住宅■2階は空き室で、現在1階に所有者居住中。引き渡し時に退去予定です■写真は2階部分と庭、屋上の様子です。 | ||
| 更新日 | 2025/10/30 | 公開期限 | 2025/11/12 | 
この物件の設備・条件
| キッチン | 対面式キッチン(カウンターキッチン) | 
|---|---|
| バス・トイレ | バス/トイレ別 | 
| 家具・家電 | 洗濯機 、 乾燥機 | 
| 室内設備 | 室内洗濯機置き場 | 
物件備考
| 備考 | ■現況: 所有者居住中  | 
|---|
【うちなーらいふ】は、より正確な情報の提供を心がけておりますが、物件情報に誤りがある場合は、ご連絡をお願い致します。
ご報告いただいた内容につきましては、掲載提供元である不動産会社に直接送信させていただきます。情報が不足している場合や、事実確認ができない場合などは対応できない場合がございます。
間違いを報告する


































