2020年2月築ジャグジー付戸建て!土地面積約490坪、新たに2棟建築可!美ら海水族館まで車で約3分(約1.0㎞)!
物件情報
| 価格 | 9,600万円 | 階数 | 2階建て |
|---|---|---|---|
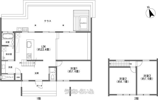
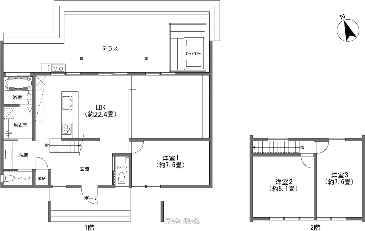
| 間取り | 3LDK ( 洋7.6 洋8.1 洋7.6 LDK22.4) | ||
| 建物面積 | 101.84m² / 30.8坪 | 土地面積 | 1620.42m² / 490.17坪 |
| 私道負担 | 有り (77m2) 含まない | 築年月 | 2020年02月(築6年) |
| 駐車場 | 3台 ※カースペース | 地目 | - |
| 引き渡し | 相談 | 接道方向 / 道路幅員 | - |
| 土地権利 | 所有 | 都市計画 | 非線引 |
| 用途地域 | 無指定 | 建物構造 | 木造 |
| 取引態様 | 仲介 | 所在地 | 本部町山川 |
| 建ぺい率 / 容積率 | - / - | 交通 | - |
| 価格備考 | - | ||
| 更新日 | 2026/03/16 | 公開期限 | 2026/03/29 |
物件備考
| 備考 | 奥まった静かな隠れ家的ロケーション。旅館業免許取得済み!家具家電什器付き! ※家具・家電代金は販売価格に含まれております。 傷や汚れ等があること、また将来的に不具合が発生する場合があることを予めご了承ください。 ■現況: 空き家 |
|---|
【掲載物件について】
・「うちなーらいふ」は、より正確な情報の提供を心がけておりますが、物件情報に誤りがある場合は、ご連絡をお願い致します。
・ご報告いただいた内容につきましては、掲載提供元である不動産会社に直接送信させていただきます。情報が不足している場合や、事実確認ができない場合などは対応できない場合がございます。
・本フォームは物件情報の誤りに関する報告専用です。賃貸・売買に関するお問い合わせには対応しておりませんので、あらかじめご了承ください。
こちらをクリックして物件の間違いを報告する。

















