【分譲地アパラギシーサイドヒルズ】豊かな自然に溶け込む赤瓦の邸宅。
物件情報
| 価格 | 1億1,000万円 | 階数 | 2階建て |
|---|---|---|---|
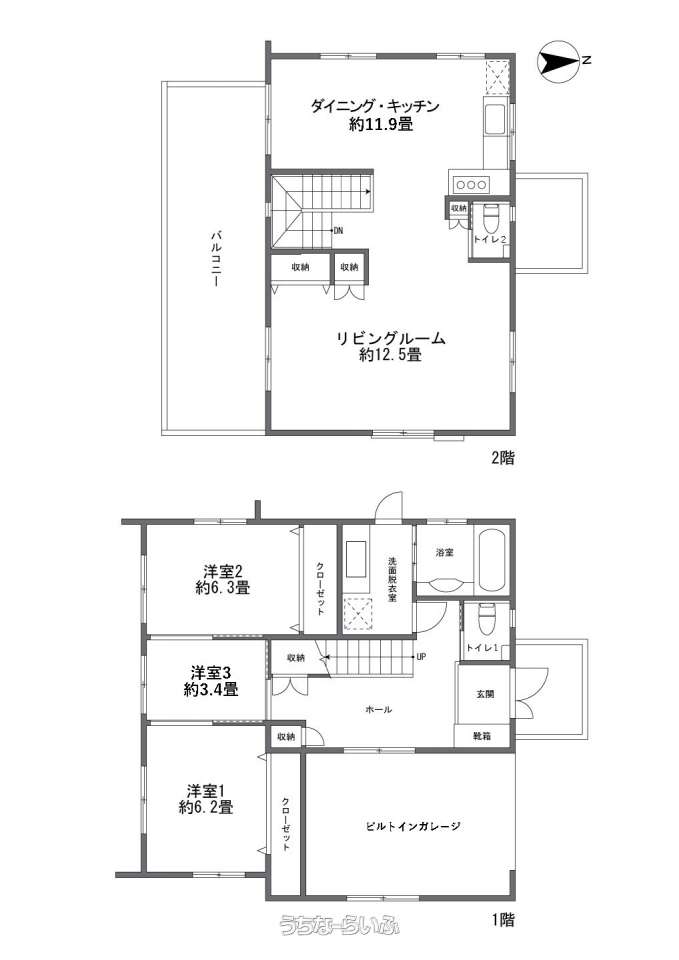
| 間取り | 3LDK ( 洋6.2 洋3.4 洋6.3 LDK24.4 ※ビルトインガレージ) | ||
| 建物面積 | 133.28m² / 40.31坪 | 土地面積 | 450.19m² / 136.18坪 |
| 私道負担 | 無し | 築年月 | 2011年04月(築14年) |
| 駐車場 | 2台 ※ビルトインガレージ(1台),カースペース(1台) | 地目 | 宅地 |
| 引き渡し | 相談 | 接道方向 / 道路幅員 | 北6m、 南14.7m |
| 土地権利 | 所有 | 都市計画 | 非線引 |
| 用途地域 | 無指定 | 建物構造 | RC(鉄筋コンクリート造) |
| 取引態様 | 仲介 | 所在地 | 宮古島市上野字宮国 |
| 建ぺい率 / 容積率 | 30% / 50% | 交通 | - |
| 価格備考 | - | ||
| 更新日 | 2026/01/31 | 公開期限 | 2026/02/13 |
この物件の設備・条件
| その他条件 | 海が見える 、 海沿い 、 眺望良し 、 静かな場所 |
|---|
物件備考
| 備考 | ■宮古島南岸エリアに広がる約9万㎡超の分譲地「アパラギシーサイドヒルズ」 ■建築・緑化の自主規制により、統一感ある洗練された街並み。 ■2階LD・バルコニーから「オーシャンビュー」!南向きの陽当たり良好な邸宅です。 ■約136.18坪のゆとりある敷地では、家庭菜園やスモーク・燻製調理等もお楽しみいただけます。 ■家具家電付き販売。台風停電時に安心な自家発電設備(単相100/200V、出力5.5KVA)も有。 ■分譲地管理会社による専用水道を運営し、造水装置で高い硬度の地下水を軟水に変えて供給。共同集中浄化処理施設への排水となるので、個別浄化槽の設置は不要です。 ※リフォーム・補修等内容は別紙「リフォーム・補修等工事説明書」を参照ください(2023年1月実施)。 ■現況: 所有者居住中 |
|---|
【うちなーらいふ】は、より正確な情報の提供を心がけておりますが、物件情報に誤りがある場合は、ご連絡をお願い致します。
ご報告いただいた内容につきましては、掲載提供元である不動産会社に直接送信させていただきます。情報が不足している場合や、事実確認ができない場合などは対応できない場合がございます。
間違いを報告する







