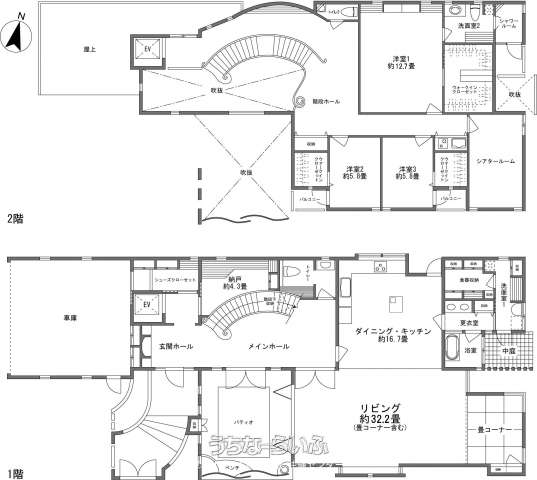
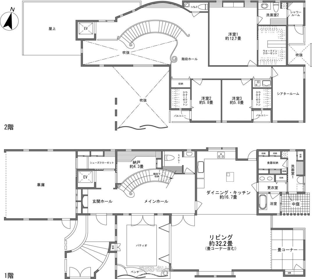
リビング約32.2畳!パティオ・ガレージ・シアタールーム付の大型一戸建て!宮城海岸まで徒歩約6分(約450m)!
物件情報
| 価格 | 2億4,900万円 | 階数 | 2階建て |
|---|---|---|---|
| 間取り | 3LDK ( 洋12.7 洋5.8 洋5.8 LDK48.9 ※シアタールーム+納戸+ガレージ) | ||
| 建物面積 | 312.69m² / 94.58坪 | 土地面積 | 318m² / 96.19坪 |
| 私道負担 | - | 築年月 | 2006年01月(築20年) |
| 駐車場 | 4台 ※ガレージ(2台),カースペース(2台) | 地目 | 宅地 |
| 引き渡し | 相談 | 接道方向 / 道路幅員 | 南東6m、 南西6m |
| 土地権利 | 所有 | 都市計画 | 非線引 |
| 用途地域 | 無指定 | 建物構造 | - |
| 取引態様 | 仲介 | 所在地 | 北谷町浜川 |
| 建ぺい率 / 容積率 | 60% / 200% | 交通 | - |
| 価格備考 | - | ||
| 更新日 | 2026/01/31 | 公開期限 | 2026/02/13 |
物件備考
| 備考 | アメリカンな雰囲気の漂う北谷町浜川に立地。玄関を入ると1階メインホールの吹き抜けが印象的。キッチンはL型で、アイランドタイプの作業台もあります。ガレージには2台駐車可。 ■現況: 所有者居住中 |
|---|
【うちなーらいふ】は、より正確な情報の提供を心がけておりますが、物件情報に誤りがある場合は、ご連絡をお願い致します。
ご報告いただいた内容につきましては、掲載提供元である不動産会社に直接送信させていただきます。情報が不足している場合や、事実確認ができない場合などは対応できない場合がございます。
間違いを報告する











