コンクリート打ちっぱなしのデザイナース住宅!LDK約32畳!追加工事(買主様負担)により新たに屋上スペースを設けることで、屋上から西海岸を望むことも可能に!
物件情報
| 価格 | 1億3,500万円 | 階数 | 2階建て |
|---|---|---|---|
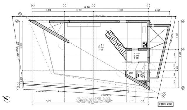
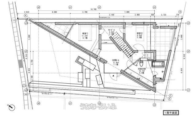
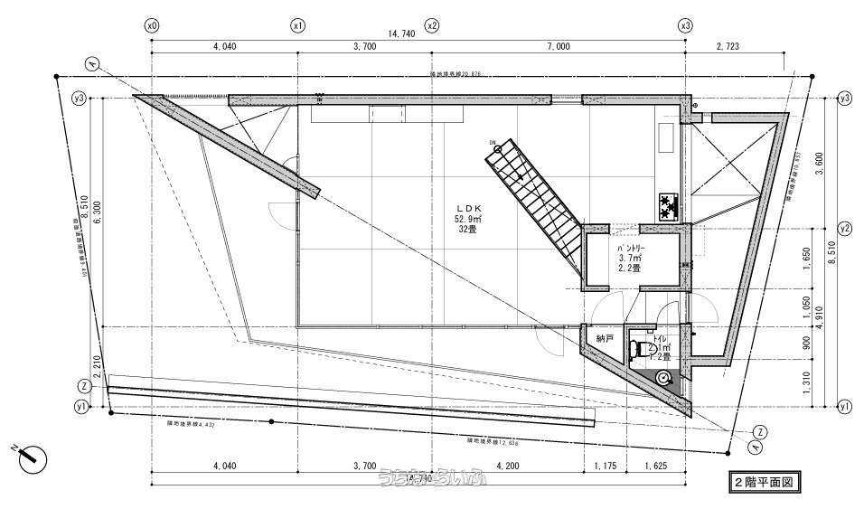
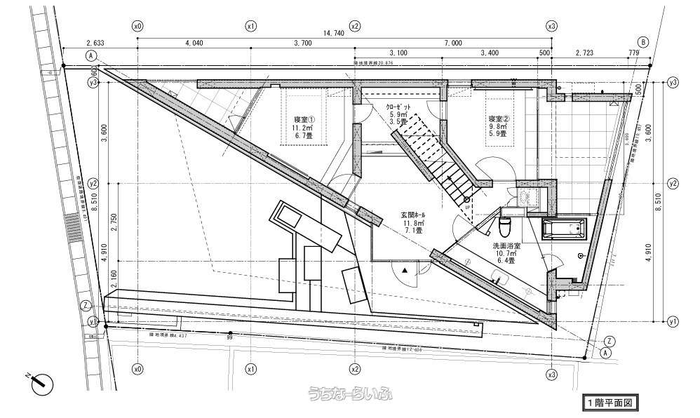
| 間取り | 2LDK ( 洋6.7 洋5.9 LDK32 ※1階クローゼット3.5帖、2階パントリー2.2帖、洗面浴室6.4帖) | ||
| 建物面積 | 130.05m² / 39.34坪 | 土地面積 | 186.32m² / 56.36坪 |
| 私道負担 | 無し | 築年月 | 2019年02月(築7年) |
| 駐車場 | 2台 並列 | 地目 | 宅地 |
| 引き渡し | 相談 | 接道方向 / 道路幅員 | 北西5.4m |
| 土地権利 | 所有 | 都市計画 | 市街化区域 |
| 用途地域 | 第一種中高層 | 建物構造 | RC(鉄筋コンクリート造) |
| 取引態様 | 仲介 | 所在地 | 宜野湾市大山3丁目 |
| 建ぺい率 / 容積率 | 60% / 200% | 交通 | 【バス停】伊佐: 徒歩約6分 |
| 価格備考 | - | ||
| 更新日 | 2026/03/13 | 公開期限 | 2026/03/26 |
この物件の設備・条件
| キッチン | 給湯 、 ガスコンロ 、 コンロ三口以上 、 システムキッチン 、 パントリー(食器・食品の収納庫) |
|---|---|
| バス・トイレ | バス/トイレ別 、 浴槽 、 温水洗浄便座 |
| 収納 | ウォークインクローゼット |
| 立地・土地特徴 | 平坦地 |
| 建物設備 | 上水道 、 下水道 、 オール洋間 |
| 構造 | デザイナーズ |
| 評価・証明書 | 完了検査済証 |
| 駐車場 | 駐輪場 |
物件備考
| 備考 | ■現況: 所有者居住中 |
|---|
【掲載物件について】
・「うちなーらいふ」は、より正確な情報の提供を心がけておりますが、物件情報に誤りがある場合は、ご連絡をお願い致します。
・ご報告いただいた内容につきましては、掲載提供元である不動産会社に直接送信させていただきます。情報が不足している場合や、事実確認ができない場合などは対応できない場合がございます。
・本フォームは物件情報の誤りに関する報告専用です。賃貸・売買に関するお問い合わせには対応しておりませんので、あらかじめご了承ください。
こちらをクリックして物件の間違いを報告する。






























