3世帯大家族から自宅兼賃貸(オーナー住まい+2世帯賃貸)時代に合わせて活用
若狭3丁目 商業地域 駐車場4~5台可能🚗 那覇中学校迄徒歩4分🏫 アパート経営や共同住宅に♪
物件情報
| 価格 | 1億1,000万円 | 階数 | 4階建て |
|---|---|---|---|
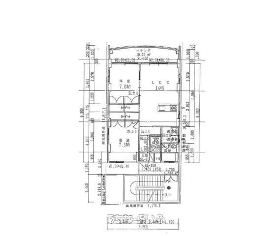
| 間取り | 2LDK ( 洋7.3 洋7 LDK14 ※2LDK ( ※2階:2LDK、 3階2LDK、 4~5階一体型ペントハウス5LDK)) | ||
| 建物面積 | 254.78m² / 77.07坪 | 土地面積 | 118.92m² / 35.97坪 |
| 私道負担 | - | 築年月 | 2000年02月(築26年) |
| 駐車場 | 1台 | 地目 | 宅地 |
| 引き渡し | 相談 | 接道方向 / 道路幅員 | 北7m |
| 土地権利 | 所有 | 都市計画 | 市街化区域 |
| 用途地域 | 商業 | 建物構造 | RC(鉄筋コンクリート造) |
| 取引態様 | 専任媒介 | 所在地 | 那覇市若狭3丁目 地図 |
| 建ぺい率 / 容積率 | 80% / 400% | 交通 | 【モノレール】美栄橋駅: 徒歩約11分 【バス停】若狭: 徒歩約2分 |
| 価格備考 | - | ||
| 更新日 | 2026/01/31 | 公開期限 | 2026/02/13 |
この物件の設備・条件
| バス・トイレ | バス/トイレ別 、 浴槽 、 独立洗面所 |
|---|---|
| 室内設備 | 室内洗濯機置き場 |
| 収納 | シューズボックス 、 全居室収納 |
| 立地・土地特徴 | 平坦地 |
| 建物設備 | 上水道 、 下水道 |
物件備考
| 備考 | ●物件名:那覇市若狭3丁目(共同住宅) ●所在地:那覇市若狭3丁目1番6 ●価格:1億1,000万円 ●土地面積:118.92㎡/35.97坪 ●土地権利:所有権 ●土地地目:宅地 ●都市計画:市街化区域 ●用途地域:商業地域(準防火地域) ●建蔽率:80% ●容積率:400% ●延床面積:254.78㎡/77.07坪 ●建物構造:鉄筋コンクリート造陸屋根高床式4階建 ●建築年月:2000年2月 ●現況:居住中(内覧要予約) ●間取り: ・2階(2LDK) ・3階(2LDK) ・4~5階(5LDK)(一体型ペントハウス) ●道路幅員:約7m(1項1号) ●道路間口:約7m ●駐車場台数:4~5台可 ●バス停:「若狭」 徒歩約2分 ●モノレール:「美栄橋」 徒歩約11分 ●若狭小学校 徒歩約5分 ●那覇中学校 徒歩約4分 ●津波警戒区域 ●引き渡し時期:相談 ●設備:上水道、下水道 ●固定資産税:294,958円(令和7年度) ●仲介手数料:3,696,000円(税込み) ●取り扱い不動産会社:オロク商会 ■現況: 空き家 |
|---|
【うちなーらいふ】は、より正確な情報の提供を心がけておりますが、物件情報に誤りがある場合は、ご連絡をお願い致します。
ご報告いただいた内容につきましては、掲載提供元である不動産会社に直接送信させていただきます。情報が不足している場合や、事実確認ができない場合などは対応できない場合がございます。
間違いを報告する






