【八重瀬町宜次】に瀟洒な中古戸建登場 【ガレージ付き】 駐車場4台可能! 二世帯住宅としても使用可能
物件情報
| 価格 | 5,900万円 | 階数 | 2階建て |
|---|---|---|---|
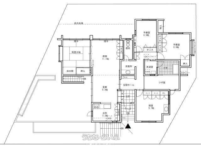
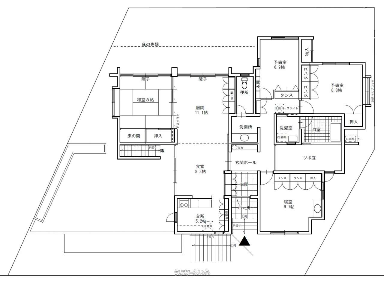
| 間取り | 4LDK ( 洋9.7 洋5.6 洋6.9 和8 LDK24.6) | ||
| 建物面積 | 204.16m² / 61.75坪 | 土地面積 | 414.2m² / 125.29坪 |
| 私道負担 | 無し | 築年月 | 1995年07月(築30年) |
| 駐車場 | 4台 並列 ※3台屋内、1台屋外 | 地目 | 宅地 |
| 引き渡し | 相談 | 接道方向 / 道路幅員 | 北5m |
| 土地権利 | 所有 | 都市計画 | 市街化区域 |
| 用途地域 | 第一種住居 | 建物構造 | RC(鉄筋コンクリート造) |
| 取引態様 | 仲介 | 所在地 | 八重瀬町宜次 地図 |
| 建ぺい率 / 容積率 | 60% / 200% | 交通 | 【バス停】具志営業所: 徒歩約7分 |
| 価格備考 | - | ||
| 更新日 | 2026/02/28 | 公開期限 | 2026/03/13 |
この物件の設備・条件
| その他条件 | 日当たり良し 、 静かな場所 |
|---|
物件備考
| 備考 | ●種別:中古戸建 ●場所:八重瀬町字宜次 ●価格:5,900万円 ●土地:125.29坪 ●建物: 61.75坪 ●地目:宅地 ●都市計画:市街化調整区域 ●用途地域:自己用住宅緩和区域 ●建蔽率:60% ●容積率:200% ●間取:4LDK ●構造:鉄筋コンクリート造陸屋根2階建て ●建築:平成7年7月 ●幅員:北側 約5m (1項1号) ●校区 ・白川小学校(徒歩約27分) ・東風平中学校(徒歩約48分) ●駐車場 ・ガレージ付き ・4台駐車可能 ●固定資産税:169,864円(令和7年度) ●仲介手数料:物件価格×3%+6万円+消費税 ■現況: 所有者居住中 |
|---|
【うちなーらいふ】は、より正確な情報の提供を心がけておりますが、物件情報に誤りがある場合は、ご連絡をお願い致します。
ご報告いただいた内容につきましては、掲載提供元である不動産会社に直接送信させていただきます。情報が不足している場合や、事実確認ができない場合などは対応できない場合がございます。
間違いを報告する









