海見えます、2世帯造り、玄関2カ所、一カ所を宿として運営しています。瓦葺木造築令和2年新築
物件情報
| 価格 | 3,980万円 | 階数 | 1階建て |
|---|---|---|---|
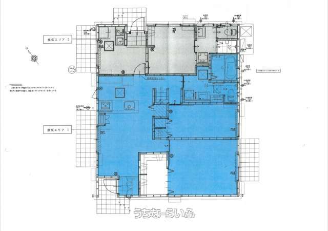
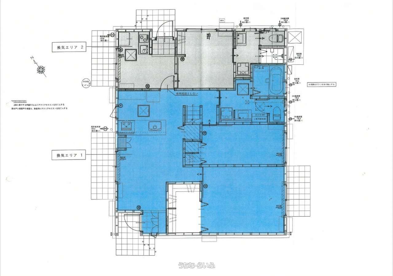
| 間取り | 4LDK ( 洋10 洋6.2 洋5 洋5.7 LDK14.8 ※玄関、キッチン、トイレ、風呂場2カ所あり) | ||
| 建物面積 | 97.07m² / 29.36坪 | 土地面積 | 554.07m² / 167.6坪 |
| 私道負担 | 無し | 築年月 | 2020年04月(築6年) |
| 駐車場 | 5台 縦列 | 地目 | 宅地 |
| 引き渡し | 相談 | 接道方向 / 道路幅員 | 北西4m |
| 土地権利 | 所有 | 都市計画 | 非線引 |
| 用途地域 | 未指定 | 建物構造 | 木造 |
| 取引態様 | 専任媒介 | 所在地 | 本部町浜元 地図 |
| 建ぺい率 / 容積率 | 60% / 200% | 交通 | - |
| 価格備考 | - | ||
| 更新日 | 2026/04/02 | 公開期限 | 2026/04/15 |
この物件の設備・条件
| キッチン | 給湯 、 ガスコンロ 、 IHコンロ 、 対面式キッチン(カウンターキッチン) |
|---|---|
| バス・トイレ | バス/トイレ別 、 浴槽 、 独立洗面所 、 トイレ2ヶ所 |
| 室内設備 | 室内洗濯機置き場 |
| 収納 | ウォークインクローゼット |
| 立地・土地特徴 | 高台に立地 |
| 建物設備 | 上水道 、 下水道 、 プロパンガス |
| その他条件 | 海が見える 、 眺望良し 、 静かな場所 |
物件備考
| 備考 | 所有者居住中のため、物件内覧はご連絡をお願いいたします。 【周辺環境】 サンエーもとぶ食品館まで 車で5分(2km) かねひでもとぶ美ら海市場まで車で5分(2.3km) ビッグもとぶ店まで車で6分(2.7km) 本部高校まで車で4分(1.5km) 本部町役場まで車で6分(2.2km) もとぶ野毛病院まで車で5分(2.2km) 海洋博記念公園まで車で8分(3.7km) ■現況: 所有者居住中 |
|---|
【掲載物件について】
・「うちなーらいふ」は、より正確な情報の提供を心がけておりますが、物件情報に誤りがある場合は、ご連絡をお願い致します。
・ご報告いただいた内容につきましては、掲載提供元である不動産会社に直接送信させていただきます。情報が不足している場合や、事実確認ができない場合などは対応できない場合がございます。
・本フォームは物件情報の誤りに関する報告専用です。賃貸・売買に関するお問い合わせには対応しておりませんので、あらかじめご了承ください。
こちらをクリックして物件の間違いを報告する。もとぶ不動産株式会社
| 住所 | 沖縄県本部町谷茶 28-1 地図 |
|---|---|
| 営業時間 | 月曜日-金曜日 09:30〜18:00 土曜日 10:00〜17:00 |
| 定休日 | 日曜日・祝日・お盆・年末年始・GW |
| 免許 | 沖縄県知事免許(3)第4478号 |


















