フル漆喰仕上げ!!駐車場3台以上・家事室・パントリー・室内物干し・エアコン1台・洗濯乾燥機・防犯カメラ・全居室収納あり
端正な空間が広がる新築平家。家事動線も美しく整えた3LDK。
物件情報
| 価格 | 4,750万円 | 階数 | 1階建て |
|---|---|---|---|
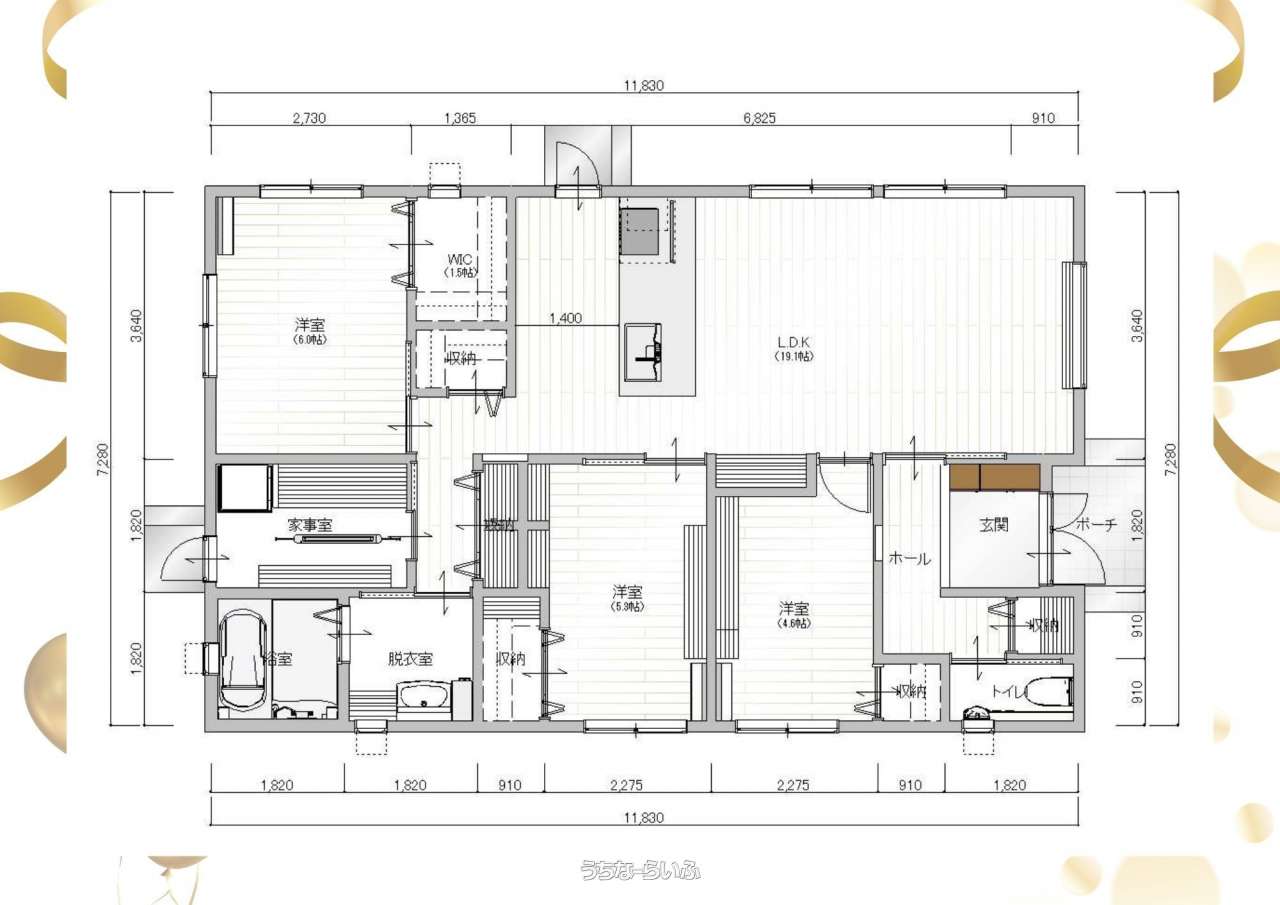
| 間取り | 3LDK ( 洋6 洋5.3 洋4.6 LDK19.1) | ||
| 建物面積 | 85.29m² / 25.8坪 | 土地面積 | 204.55m² / 61.87坪 |
| 私道負担 | - | 築年月 | 2025年12月(新築) |
| 駐車場 | 3台 並列 | 地目 | 畑 |
| 引き渡し | 相談 | 接道方向 / 道路幅員 | 南東5m |
| 土地権利 | 所有 | 都市計画 | 非線引 |
| 用途地域 | 未指定 | 建物構造 | 木造 |
| 取引態様 | 専属専任媒介 | 所在地 | 沖縄市古謝3丁目 地図 |
| 建ぺい率 / 容積率 | 70% / 200% | 交通 | 【バス停】泡瀬二区: 徒歩約3分 |
| 価格備考 | 契約時:手付金100万円 収入印紙1万円 仲介手数料:1,548,000円 | ||
| 更新日 | 2026/05/09 | 公開期限 | 2026/05/22 |
この物件の設備・条件
| キッチン | ガスコンロ 、 コンロ三口以上 、 対面式キッチン(カウンターキッチン) 、 システムキッチン 、 パントリー(食器・食品の収納庫) 、 食器洗乾燥機 |
|---|---|
| バス・トイレ | バス/トイレ別 、 ユニットバス 、 浴槽 、 独立洗面所 、 追焚機能 、 浴室乾燥機 、 温水洗浄便座 |
| 家具・家電 | 冷房 、 暖房 、 乾燥機 |
| セキュリティ | TVホン(TVモニタ付インターホン) 、 防犯用ガラス |
| 室内設備 | 室内洗濯機置き場 |
| 収納 | シューズボックス 、 床下収納 、 全居室収納 |
| 立地・土地特徴 | 角地 、 整形地 、 平坦地 、 隣の建物との間隔が広い |
| 建物設備 | 上水道 、 EV車充電設備 、 複層ガラス 、 プロパンガス 、 オール洋間 |
| 評価・証明書 | 新築時・増改築時の設計図あり |
| 瑕疵保証あり | 瑕疵保険(国交省指定法人)による保証 |
| その他条件 | 日当たり良し |
物件備考
| 備考 | ★コンビニ 徒歩5分 ★ニトリ具志川店 徒歩7分 ★ イオン具志川店 3分 ★ あわせモール 3分 ★ うるマルシェ 5分 ★ MEGAドン・キホーテうるま店 7分 ★ サンエー具志川メインシティ 11分 ★ イオンモール沖縄ライカム 12~24分 ★ 海中道路ビーチ 20~35分 ★ 浜比嘉島 26~35分 ★ 宮城島 30~40分 ★ 伊計島 35~45分 ★ 沖縄県立中部病院 10分 ★ 沖縄南インターチェンジ 16~35分 ■現況: 完成済 |
|---|
【掲載物件について】
・「うちなーらいふ」は、より正確な情報の提供を心がけておりますが、物件情報に誤りがある場合は、ご連絡をお願い致します。
・ご報告いただいた内容につきましては、掲載提供元である不動産会社に直接送信させていただきます。情報が不足している場合や、事実確認ができない場合などは対応できない場合がございます。
・本フォームは物件情報の誤りに関する報告専用です。賃貸・売買に関するお問い合わせには対応しておりませんので、あらかじめご了承ください。
こちらをクリックして物件の間違いを報告する。






































