名護市宮里にて全2棟新築分譲住宅建築中!1号棟→玄関横シューズクローク付き 完成時期は令和8年2月頃となっております。
案内予約受付中ですのでお気軽にお問合せ下さい★
※案内時に資料をお渡しいたしますので現時点での資料は送付は受け付けておりません。
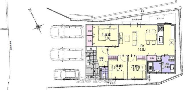
売買一戸建て名護市宮里3丁目 3LDK
価格 4,280万円
物件情報
| 価格 | 4,280万円 | 階数 | 1階建て |
|---|---|---|---|
| 間取り | 3LDK ( 洋6.3 洋5.1 洋5.1 LDK19.8 ※玄関横シューズクローク有り) | ||
| 建物面積 | 82.82m² / 25.05坪 | 土地面積 | 172.49m² / 52.17坪 |
| 私道負担 | 無し | 築年月 | 2026年01月(新築) |
| 駐車場 | 3台 並列 | 地目 | 宅地 |
| 引き渡し | 相談 | 接道方向 / 道路幅員 | 北西10.869m |
| 土地権利 | 所有 | 都市計画 | 非線引 |
| 用途地域 | 第一種中高層 | 建物構造 | RC(鉄筋コンクリート造) |
| 取引態様 | 売主 | 所在地 | 名護市宮里3丁目 地図 |
| 建ぺい率 / 容積率 | 60% / 200% | 交通 | 【バス停】宮里3丁目バス停: 徒歩約3分 |
| 価格備考 | 売主の為仲介手数料はかかりません! | ||
| 更新日 | 2026/01/30 | 公開期限 | 2026/02/12 |
この物件の設備・条件
| キッチン | 給湯 、 ガスコンロ 、 コンロ三口以上 、 システムキッチン |
|---|---|
| バス・トイレ | バス/トイレ別 、 ユニットバス 、 浴室暖房 、 温水洗浄便座 |
| セキュリティ | TVホン(TVモニタ付インターホン) |
| 通信設備 | BSアンテナ 、 CSアンテナ |
| 収納 | シューズインクローク |
| 建物設備 | 上水道 、 下水道 、 EV車充電設備 、 24時間換気システム 、 プロパンガス 、 オール洋間 |
| 瑕疵保証あり | 瑕疵保険(国交省指定法人)による保証 |
物件備考
| 備考 | 設備充実 ■現況: 建築中 ■建築確認番号: 第 沖確R07110031号 |
|---|
【うちなーらいふ】は、より正確な情報の提供を心がけておりますが、物件情報に誤りがある場合は、ご連絡をお願い致します。
ご報告いただいた内容につきましては、掲載提供元である不動産会社に直接送信させていただきます。情報が不足している場合や、事実確認ができない場合などは対応できない場合がございます。
間違いを報告する






