うるま市塩屋にて全2棟RC造平屋建て建築中!2026年1月頃完成予定となっております。完成後案内予約受付中(^^)/
※資料等詳細は物件案内時にお渡しとなりますのでご了承ください。
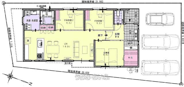
売買一戸建てうるま市塩屋 3LDK
価格 4,070万円
物件情報
| 価格 | 4,070万円 | 階数 | 1階建て |
|---|---|---|---|
| 間取り | 3LDK ( 洋6.6 洋5.2 洋5.2 LDK18.9 ※玄関に納戸スペース有り) | ||
| 建物面積 | 83.71m² / 25.32坪 | 土地面積 | 175.3m² / 53.02坪 |
| 私道負担 | - | 築年月 | 2026年01月(新築) |
| 駐車場 | 3台 並列 | 地目 | 宅地 |
| 引き渡し | 相談 | 接道方向 / 道路幅員 | 南4m |
| 土地権利 | 所有 | 都市計画 | 非線引 |
| 用途地域 | 無指定 | 建物構造 | RC(鉄筋コンクリート造) |
| 取引態様 | 売主 | 所在地 | うるま市塩屋 地図 |
| 建ぺい率 / 容積率 | 60% / 200% | 交通 | 【バス停】中塩屋: 徒歩約2分 |
| 価格備考 | 売主の為仲介手数料なし! | ||
| 更新日 | 2026/01/30 | 公開期限 | 2026/02/12 |
この物件の設備・条件
| キッチン | 給湯 、 省エネ給湯器 、 ガスコンロ 、 コンロ三口以上 、 システムキッチン 、 食器洗乾燥機 |
|---|---|
| バス・トイレ | バス/トイレ別 、 ユニットバス 、 浴槽 、 独立洗面所 、 浴室乾燥機 、 浴室1坪以上 、 浴室暖房 、 温水洗浄便座 |
| セキュリティ | TVホン(TVモニタ付インターホン) 、 ディンプルキー |
| 室内設備 | 室内洗濯機置き場 |
| 通信設備 | BSアンテナ 、 CSアンテナ |
| 収納 | ウォークインクローゼット 、 シューズボックス 、 全居室収納 |
| 建物設備 | 上水道 、 下水道 、 24時間換気システム 、 宅配ボックス 、 プロパンガス 、 オール洋間 |
| 評価・証明書 | 新築時・増改築時の設計図あり |
| 瑕疵保証あり | 瑕疵保険(国交省指定法人)による保証 |
物件備考
| 備考 | 玄関横に納戸が魅力的! ■現況: 建築中 ■建築確認番号: 第 沖建技確済2025-2号 |
|---|
【うちなーらいふ】は、より正確な情報の提供を心がけておりますが、物件情報に誤りがある場合は、ご連絡をお願い致します。
ご報告いただいた内容につきましては、掲載提供元である不動産会社に直接送信させていただきます。情報が不足している場合や、事実確認ができない場合などは対応できない場合がございます。
間違いを報告する









